EasyManua.ls Logo

Siemens 6RA7086-6KS22

Siemens 6RA7086-6KS22
734 pages
To Next Page IconTo Next Page
To Next Page IconTo Next Page
To Previous Page IconTo Previous Page
To Previous Page IconTo Previous Page
Loading...
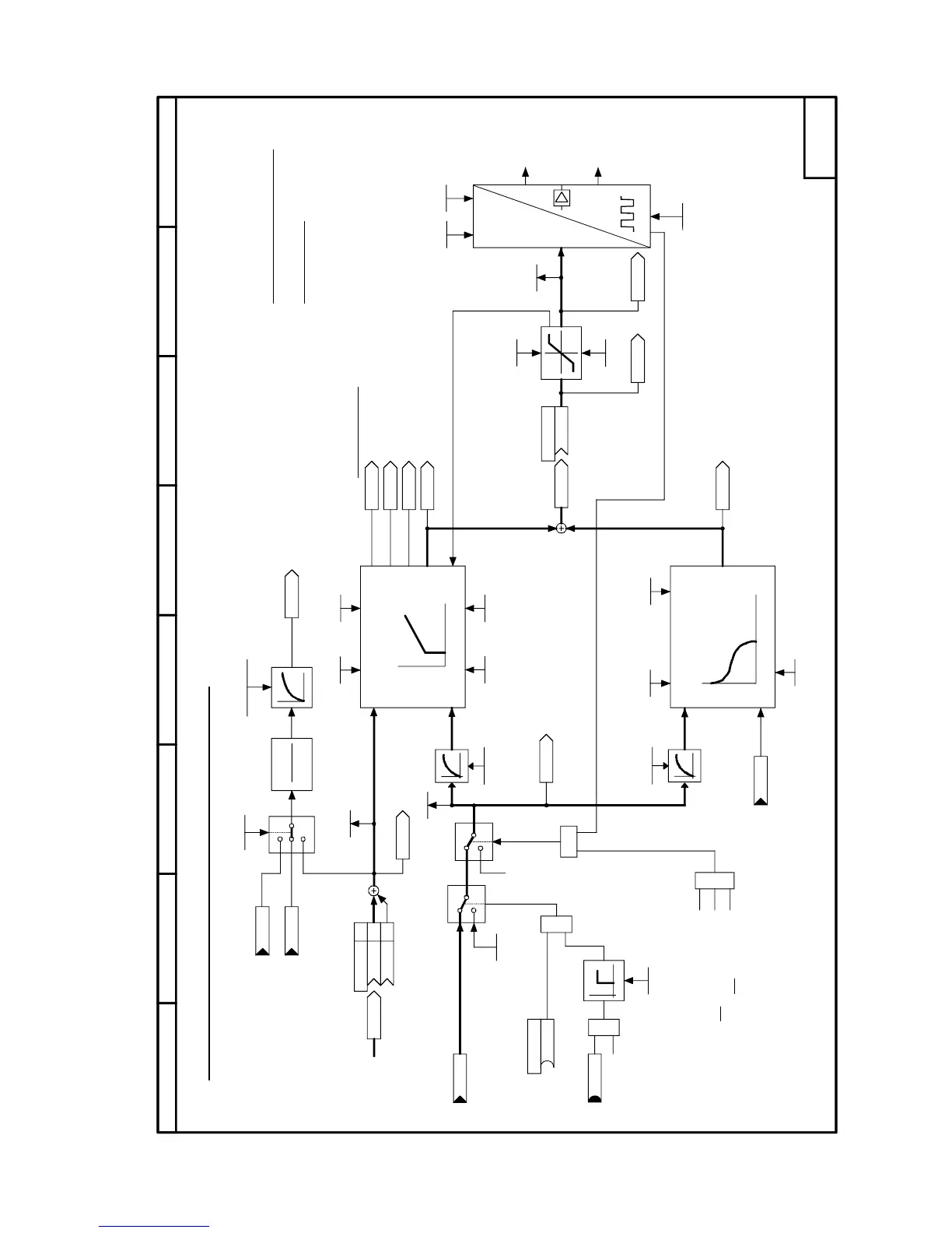
05.05 Function diagrams
SIEMENS AG 6RX1700-0AD76 8-39
SIMOREG DC Master Operating Instructions
Sheet G166 Closed-loop field current control, field gating unit
-
+
Kp Tn
r073.002
P102
t
α
α
G
W
=
*
1
0
1
&
87564321
- G166 -
1
0
1
0
2
1
&
<2>
<2>
[G166.3]
[G165.5]
[G165.8]
[G182.6]
.01
.02
0
[G167.3]
[G188.3]
[G160.3]
[G160.7]
[G162.1]
[G166.2]
[G167.3]
[G188.3]
P255.F
P256.F
P112.F
r035*)
r036*)
P257.F
P258.F
P250.F
P251.F
P252.F
K0265
K0263
K0261
K0262
K0260
K0271
K0252
P610 (252)
K
K0251 K0250
r034
K0290
K0275
K0268
K0304
P692.B (0)
B
B0124
K0266
P082
P264.F
P254.F
P263.F P253.F
0%
P263 (1)
K0268
K0293
<1>
P260.F (0)
(0...10000ms)
P261.F (0)
(0...10000ms)
P612
K
K
266
P097
Current controller field
Actual value
Setpoint
Line voltage
(field)
Field circuit resistance
Internal actual
field current
Motor flux
Field current controller
set/actual diff.
P comp.
I comp.
output
Field precontrol
V_control_F
I_field_set
Field current setpoint
Standstill field
Inject standstill excitation
Delay time
Line contactor CLOSED
Stop
I component
α
G
α
W
or
limitation reached
*) With these parameters,
100% corresponds to the rated motor field current (P102)
Filtering of line
frequency tracking
Firing
pulse 1/3
Firing
pulse 2/4
Closed-loop field current control, field gating unit
0=Reset
P comp.
0=Reset
I comp.
1=Enable
precontrol
Select input
value for flux
calculation
P082 =
0: Field firing pulses disabled
1: Field firing pulses enabled with
o5.0
2: Standstill field with
o7.0
3: Field firing pulses are always enabled
4: Field gating pulses enabled
with "Auxiliaries ON" (B0251)
11..14:
External 40.00 A - field power module
r073.001=40.00 A
otherwise as for P082=1...4
21..24:
External field device
Setpoint from K0268
Actual value to P612
r073.001 and r073.002=U838
(P076.002 is ineffective)
otherwise as for P082=1...4
Field characteristic
P120.F to P139.F
<1> With "Standstill field" K0268
Filter time
Filter time
P082 =
2, 12 or 22
P082<21 (no external field device)
P082=21
and operating state > o5.0
P082=24
and auxiliaries OFF
If field firing pulses are disabled,
the setpoint will be reset to 0
1 = Field firing pulses disabled
FS
P097: Response to fault messages
0 = Disable field firing pulses
1 = Enable field firing pulses

Table of Contents

Related product manuals