EasyManua.ls Logo

Siemens 6RA7086-6KS22

Siemens 6RA7086-6KS22
734 pages
To Next Page IconTo Next Page
To Next Page IconTo Next Page
To Previous Page IconTo Previous Page
To Previous Page IconTo Previous Page
Loading...
Function diagrams 05.05
8-80 SIEMENS AG 6RX1700-0AD76
SIMOREG DC Master Operating Instructions
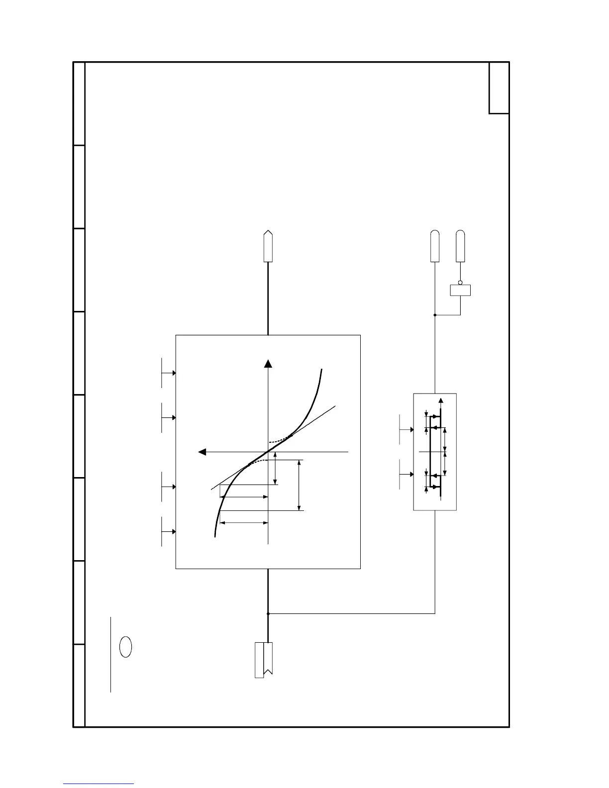
Sheet B153 Root extractor
87564321
- B153 -
58
0
1
[B152.8]
U680 (9483)
KK K9485
U683.001
U682
U681
U682
B9686
U681 (1) U682 (1)
U681
U683.001
U684.001
B9687
U684.001 U683.002 U684.002
U683.002
U684.002
Output
Input
Hysteresis
Parameters:
U683.001 and U684.001: Setting of the magnitude of the root function
With parameter U683.001 you can define
at which input value the output of the root
function will take on value U684.001.
U683.002 and U684.002: Setting of the maximum gradient
With parameter U683.002 you can define
at which input value the limitation straight line
will take on value U684.002.
x value y value x value y value
Root extractor
Definition of the root function Definition of the maximum gradient
Threshold

Table of Contents

Related product manuals