EasyManua.ls Logo

Siemens 6RA7086-6KS22

Siemens 6RA7086-6KS22
734 pages
To Next Page IconTo Next Page
To Next Page IconTo Next Page
To Previous Page IconTo Previous Page
To Previous Page IconTo Previous Page
Loading...
05.05 Function diagrams
SIEMENS AG 6RX1700-0AD76 8-115
SIMOREG DC Master Operating Instructions
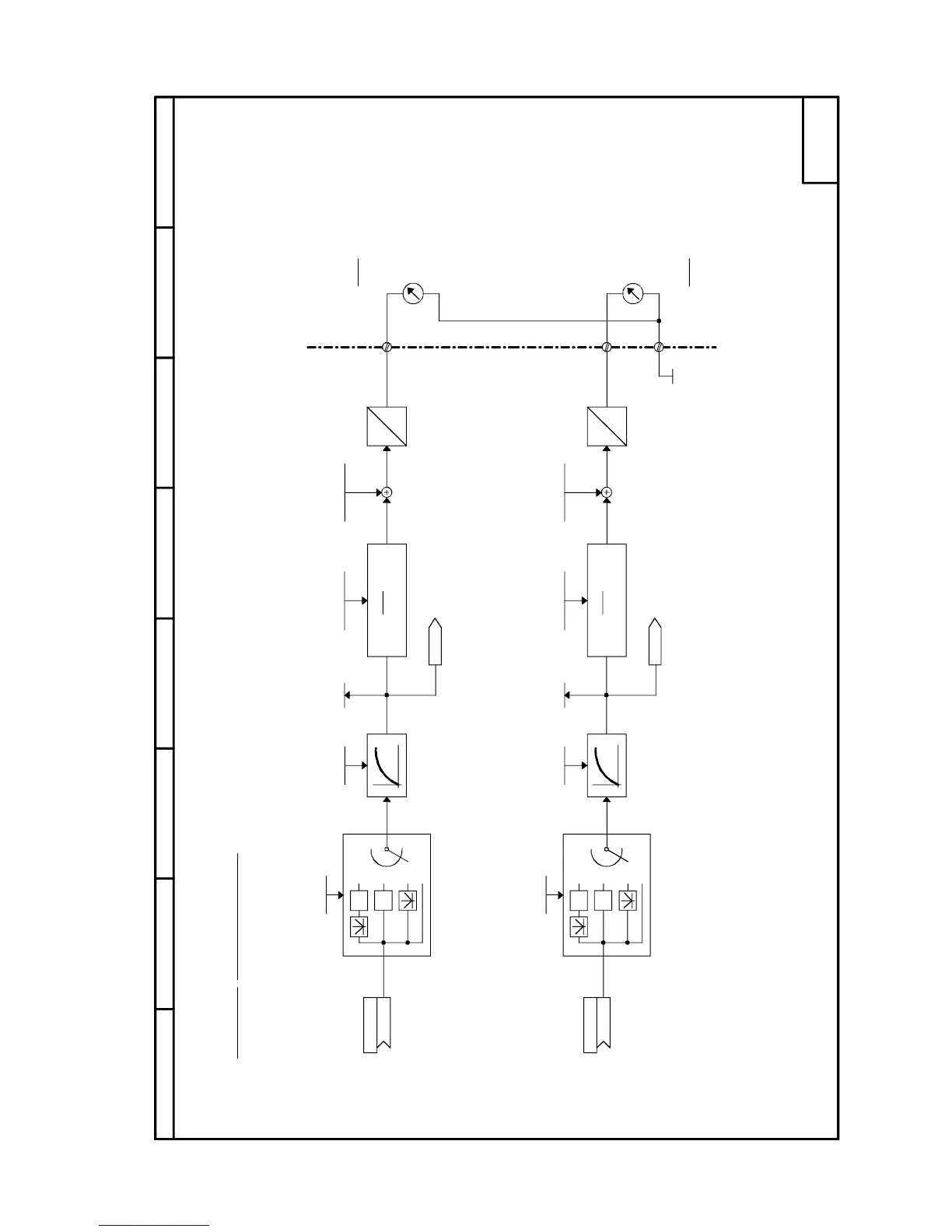
Sheet Z113 1
st
EB1: Analog outputs
8
7
564321
- Z113 -
-1
-1
1
2
3
0
x
y
y [V] =
*
x
100%
A
D
47
U766.1
-1
-1
1
2
3
0
x
y
y [V] =
*
x
100%
A
D
48
49
M
U766.2
AO1
AO2
U764.1 (0)
K5104
U763.1 (0)
K
U765.1 (0)
(0...10000ms) -200,00...+199,99V
U766.1 (10,00)
-10,00...+10,00V
U767.1 (0,00)
n768.1
U764.2 (0)
K5105
U763.2 (0)
K
U765.2 (0)
(0...10000ms) -200,00...+199,99V
U766.2 (10,00)
-10,00...+10,00V
U767.2 (0,00)
n768.2
-10V...+10V
-10V...+10V
Time constant Standardization
Offset
11 Bit + VZ
Time constant Standardization
Offset
11 bits + sign
100%
Uout [V] =
K5104
* Standardization [V] + Offset [V]
100%
Uout [V] =
K5105
* Standardization [V] + Offset [V]
1st EB1: Analog outputs

Table of Contents

Related product manuals