EasyManua.ls Logo

Siemens FC700A - Wiring, Key Data, and Connections

Siemens FC700A
108 pages
Print Icon
To Next Page IconTo Next Page
To Next Page IconTo Next Page
To Previous Page IconTo Previous Page
To Previous Page IconTo Previous Page
Loading...
E3I020 RS232 module
49
Siemens Building Technologies 007831_a_en_--.doc
Fire & Security Products 03.2004
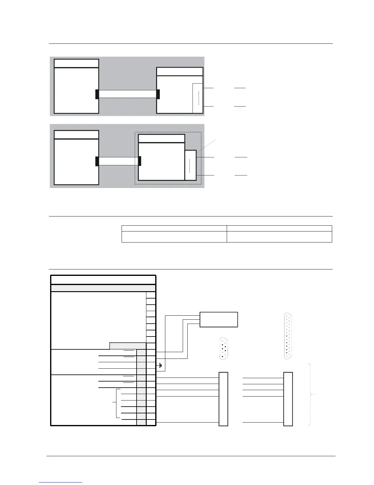
12.3 Wiring principle
F20A020
1
20
Mounting accessories Z1B020
E3I020
E3I020
PrinterRS232-1
ModemRS232-2
PrinterRS232-1
Modem
RS232-2
FC700A
B3Q700 (CPU)
FT700A
B3Q700
F20A140
Housing H28
Plug-in terminals from Z1B020
1
12
Housing H38
ST1
ST2
ST1
ST2
X3
ST2
12.4 Key data
Operating voltage 5V from B3Q700 via flat cable F20A...
Quiescent current increase B3Q700 when operat-
ing one E3I020
25mA (increase on 24V-side)
12.5 Connections
(Printer)
E3I020
1
2
3
4
5
6
7
8
9
10
11
12
13
14
15
16
17
18
19
20
Module chassis
unused
(transmit) TXD1
(transmit) TXD2
(receive) RXD1
(receive) RXD2
(ground 1) 0V1
(ground 2) 0V2
RTS2
CTS2
TCLK2
RCLK2
CD2
RS232-1
RS232-2
12
11
10
9
8
7
6
5
4
3
2
1
Connector
ST2
(SWE700A)
Terminal block
X3
extended
functions
(connect to chassis
ground)
1
14
1
6
RXD
GND
Sub-D connector
(DB9) with cable
or
Modem
Depending on type of modem the signals 'RTS/CTS' must not be wired
CTS
RTS
TXD
Sub-D connector
(DB25) with cable
5
8
7
2
3
e.g. printer
RXD
GND
CTS
RTS
TXD
7
5
4
3
2

Table of Contents

Other manuals for Siemens FC700A

Related product manuals