EasyManua.ls Logo

Siemens FC700A - K3 R072 Board Connections

Siemens FC700A
108 pages
Print Icon
To Next Page IconTo Next Page
To Next Page IconTo Next Page
To Previous Page IconTo Previous Page
To Previous Page IconTo Previous Page
Loading...
K3R072 Mimic Display board
88
Siemens Building Technologies 007831_a_en_--.doc
Fire & Security Products 03.2004
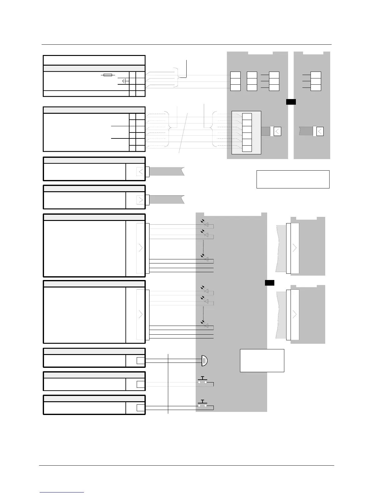
22.8 Connections
K3R072
1
2
3
4
+
Plug-in terminals
K1
24V
Supply 9...45VDC
0V
Flat cable header
ST1
from B3Q700 "ST4"
or
from K3I050 "ST2"
to other K3R072/B3R051
F1
Data bus (via flat cable)
1
2
3
4
5
6
Plug-in terminals
K2
(Clock)
Data bus (via terminals)
(Data)
(Load)
Parallel derivation
permissible
1
2
3
4
5
6
B3Q700
"ST4"
max. 1000m
Flat cable header
ST11
unused
if K3R072
separate
use flat cable
F50F410
Flat cable header
ST2
Connector
X49
Output for buzzer
max. 12mA / 24V
Connector
X50
Input lamp test
Connector
X55
Input switch-off buzzer
Key 'Lamp test'
Key 'Switch-off buzzer'
Buzzer
Mimic Display panel
LED 2
LED 1
Outputs 1-24
max. 12mA / 3,6V
B3Q700
K7-1
K7-2
K7-3
oder
K7-4
K7-5
K7-6
if K3R072
in the vicinity
K1-4
K7-5
K1-1
to other K3R072
Adapter Z3I530
Short-circuit proof
inputs/outputs only
for housing
application
inside
LED 24
LED 'Operation'
(Option, LED not
equipped)
49
50
Flat cable header
ST12
LED 2
LED 1
Outputs 25-48
max. 12mA / 3,6V
LED 24
49
50
1
1
unused
ST1
ST1
K3G060
K3G060
Activation
Relay
1...24
K3I050
K1-3
K1-4
K1-2
K3I050
"ST2"
or
Data bus (via flat cable)
use flat cable
F50F410
Note:
one
Remove eventually resistor array.
Must be assembled for device!
or
-
use Z3I520
12 pin
12 pin
50 pin50 pin2 pin
2 pin 2 pin
Activation
Relay
25...48

Table of Contents

Other manuals for Siemens FC700A

Related product manuals