EasyManua.ls Logo

Skyjack SJ12 E - Hydraulic Connections

Skyjack SJ12 E
170 pages
Print Icon
To Next Page IconTo Next Page
To Next Page IconTo Next Page
To Previous Page IconTo Previous Page
To Previous Page IconTo Previous Page
Loading...
43
SJ12 E, SJ16 E, SJ20 E
241914ACA
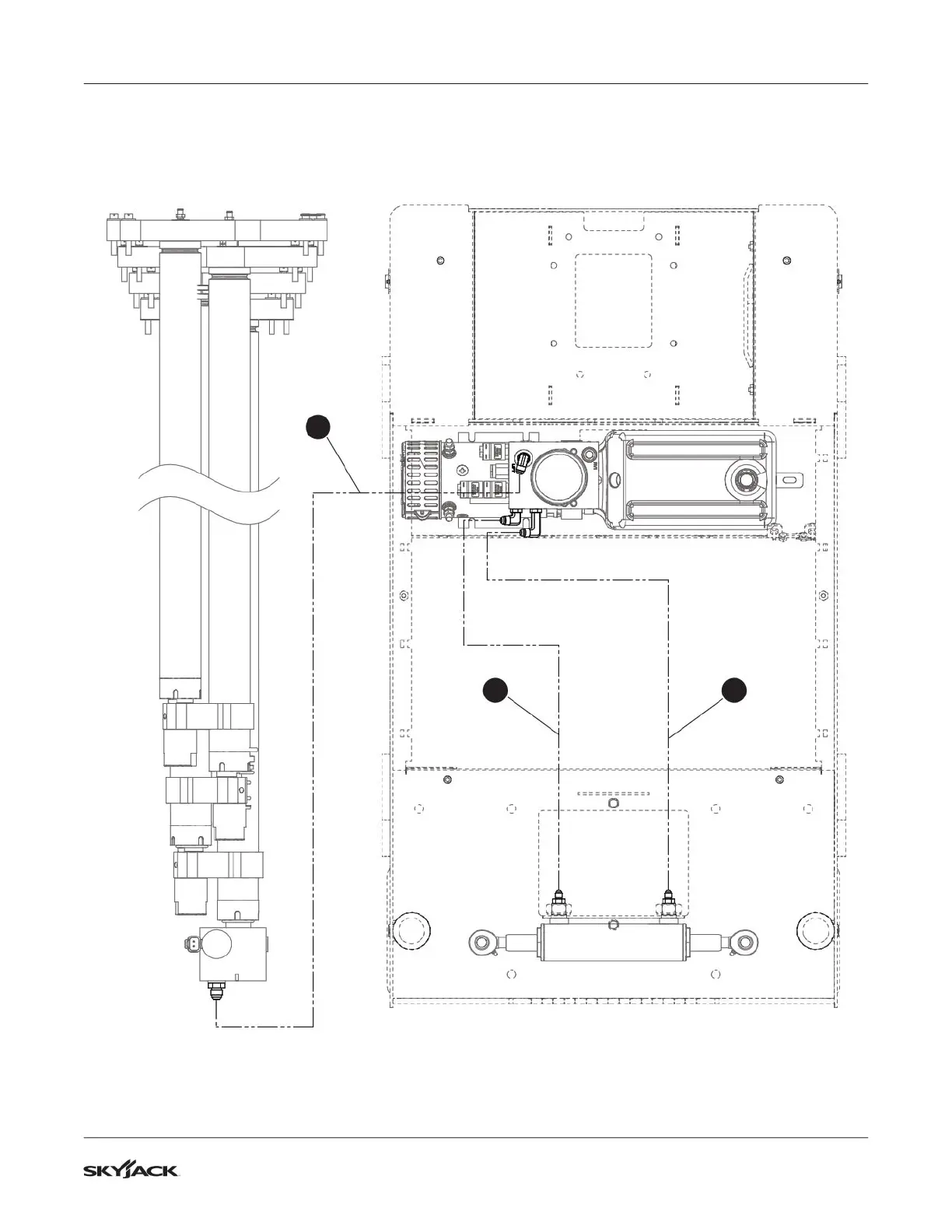
Hydraulic Connections Section 3 – System Component Identication and Schematics
3.6 Hydraulic Connections
12
3
S2
Left
Steer
Right
Steer
S1

Table of Contents

Other manuals for Skyjack SJ12 E

Related product manuals