EasyManua.ls Logo

Skyjack SJ12 E - 6.6 Open the hydraulic;electrical compartment

Skyjack SJ12 E
170 pages
Print Icon
To Next Page IconTo Next Page
To Next Page IconTo Next Page
To Previous Page IconTo Previous Page
To Previous Page IconTo Previous Page
Loading...
V
W
Y
Z
L
M N
O
F
G
H
K
X
I
J
EDCBA
U
T
S
R
61
SJ12 E, SJ16 E, SJ20 E
241914ACA
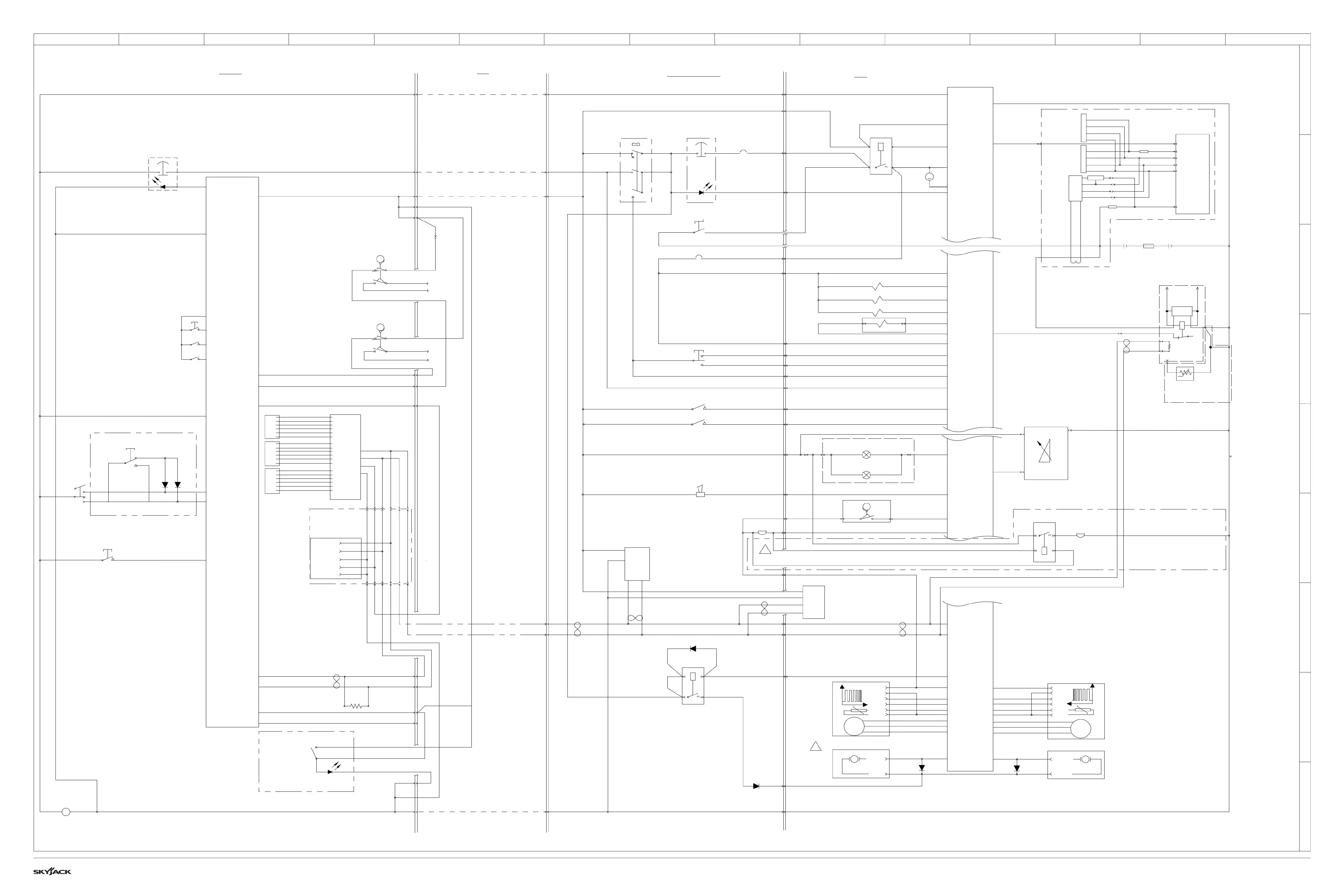
3.26 Electrical Schematic
3.26 Electrical Schematic
M234002AG_2
AG
AG
B2
12V
BATT.
F1
300A
FUSE
M
CB1
15A CIRCUIT
BREAKER
05
08
07
BASE
PLATFORM
S3
LIFT/OFF
/DRIVE
SWITCH
LIFT SOLENOID
LEFT SOLENOID
RIGHT SOLENOID
B-
P-
B+
24V DELTA-Q CHARGER
110 VAC
LINE VOLTAGE
NC
B1
12V
BATT.
A1
A24
A25
A3
DRIVE
LIFT
UP
DN
B7
B6
B2
14A
13A
10
10
19
00
RED
08
V
00
00
WHITE
08C
A29
60
00
+
-
08C
A31
A18
J11
TELEMATICS
OPTION
(TRACKUNIT)
03
19A
37
S28
EMERGENCY
STOP
+ - + -
LOWER SOLENOID
S4
EMERGENCY STOP
BCI
BATTERY CHARGE
INDICATOR
S2
LIFT/LOWER
00
00
10
BATTERY PACK
14
23
24
08
DISPLAY MODULE
CM1
ZAPI 3IN1
CONTROLLER
PUMP MOTOR
TELEMATICS OPTION
13
05A
S10
IDLE/PLTF/BASE
KEY SWITCH
(IN IDLE POSITION)
07
05A
08C
PL-1
POWER ON
LIGHT
PL-2
POWER ON
LIGHT
FL1
FLASHING LIGHT(S)
22
08C
2208C
22
B20
07
A8
13B
A27
A26
A13
A28
UM
VM
WM
A19
A17
A4
A33
A9
US
VS
WS
A15
A20
A21
A32
MOTOR BRAKE
TEMP. SENSOR
30R
30L
08C
00R
08R
CHA R
CHA L
00L
08L
P8-1
P10-6
P10-1
P10-3
M
M
08
ALL MOTION, TILT
& OVERLOAD
BEEPER
49
PURPLE/WHITE
08C
60
12
09
08
00
CAN LO
CAN HI
YELLOW
GREEN
CAN LO
CAN HI
P-15
P-07
P-23
P-32
P-17
JSTK1
P-26
P-27
P-16
CAN HI
CAN LO
TMP R
TMP L
19A
A23
M1
M3
M2
21
MAST POSITION
LIMIT SWITCH
P-24
12A
08C
S5
DIAGNOSTIC
SWITCH
19B
S8
HORN
SWITCH
B8
SERVICE POSITION
LIMIT SWITCH NCHO
LS4
P-18
51
08
08
49
P-8
P10-4
P9-2
P10-5
P10-2
P9-1
A30
P7-2
P7-1
05C
05C
00L
00R
EN1
EN2
MAST
120 OHM
RST1
DS1
00
DECK EXTEND
LIMIT SWITCH NCHO
08C
82
LS3
X1-2
X1-1
X1-7
X1-3
X1-6
X1-10
X1-16
X2-1
X2-2
X2-3
X2-4
X2-5
X2-6
08
PURPLE/WHITE
N/U
N/U
00
X1-14
CAN H 4
0V 1
HEIGHT
SENSOR
OUTDOOR
OPTION
BK/WH
BK
BU
BU
BN
BN
BK/WH
BK
B3
P22-1
P22-2
DIAG CONN
00
08C
J2-1
J2-2
J2-3
J2-4
J1-1
J1-6
J1-3
J1-4
DIAGNOSTIC
CONNECTOR
P-25
07
B12
10
08
08
A7
08C
X1-4
CAN L 5
08C
B11
30
S6
BRAKE RELEASE
SWITCH
08C
HORN
H1
+
-
CB2
15A CIRCUIT
BREAKER
03C
03B
03C
03C
03C
03C
03B
03A
LS1
NOHC
J6-2
J6-1
BP-29
LOWER CONTROL BOX
- BRAKE +
03
S1 MAIN
DISCONNECT
03A
03B
B21
08C
29
A2
A10
08L
08L
08L
08L
49
30
19B
14A
13A
10
07
03C
03B
60
29
08L
CAN HI
CAN LO
08C
+ BRAKE -
08
08C
03A
05A
B18
X3-1
X3-2
X3-3
X3-4
X3-5
X3-6
X3-7
X3-8
X3-9
X3-11
X4-2
X4-1
X4-3
X4-4
X4-5
X4-6
X4-7
X4-8
X4-9
X4-10
00
00
C1
MOTOR CONTACTOR
3
6
4
5
2
CHB L
CHB R
D05B
05C
+
-
05A
30ACR
BRAKE RELAY
05A
05A
05B
05C
30A
D30L
B22
30A
X4-12
30A
X3-10
08C
03C
03C
B19
03C
X4-11
05C
D30R
TO DIAG
CONN
08C
00
CAN LO
CAN HI
D30
X1-9
CAN HI
V+
V-
LOAD
CELL
JUNCTION
BOX
CAN LO
X1-12
X1-11
HEIGHT
SENSOR
OUTDOOR
OPTION
120
120A
S7
OUTDOOR
SWITCH
08C
X1-5
08C
X1-8
82
00
+ Vs 2
PL-3
INDOOR
LIGHT
P-30
P-22
00
X1-15
00
120
CAN GND 3
CAN LO
CAN HI
RD
CAN HI
CAN LO
CAN LO
CAN HI
CAN LO
CAN HI
CAN HI
CAN LO
82
00
S9
SGLE
OPTION
09B
09
09A
D09A-2
D09A-1
WITHOUT SGLE OPTION
P8-2
P8-3
P8-4
P8-5
P8-6
P11
J11
2
1
3
4
6
5
2
1
3
4
6
5
WITHOUT
OUTDOOR
OPTION
LOWER SOLENOID
12
S1+
05B
00
CAN LO
CAN HI
08D
05B
F1 1A FUSE
F2 1A FUSE
J11-3
J11-9
J11-2
J11-4
J11-7
J11-8
BMS
CURRENT
SENSOR
00
CAN LO
CAN HI
BMS
TEMP
SENSOR
N/U
N/U
(SPARE)
BR
WH
BU
BK
GR
BMS OPTION
VREG
A
B
C
(9V)D
LEFT
TRACTION
MOTOR
(SLAVE)
BK2
BK1
RIGHT
TRACTION
MOTOR
(MASTER)
S1-
S2-
S2+
E-
E+
S3+
S3-
S4-
S4+
E-
E+
S5+
S5-
S6-
S6+
E-
E+
LC1
FRT
LC2
RT
LC3
LFT
120 OHM
1
08C
CAN HI
CAN LO
CAN HI
CAN LO
08C
87
86
30
85
GR
WH
BU
BR
BK
RD
GR
WH
BU
BR
BK
RD
GR
WH
BU
BR
BK
RD
BK
WH
BU
TO
TELEMATIC
OPTION
08C
00
CAN LO
CAN HI
DIAG
CONN
(SPARE)
AT1
ANGLE
TRANSDUCER
B+
GND
SIG
28
08C
00
B4
P10-1
P10-2
P10-3
29CR
WHITE NOISE RELAY
-
+
08C
87
85
30
86
08L
29
P29
29A
WITH WHITE NOISE OPTION
08C
00
00
08L
29
BP-29A
WHITE NOISE
ALARM
RIGHT
LEFT
ENABLE
31
29
25
24
22
21
20
19
18
17
15
14
13
12
11
10
09
08
07
06
04
02
01
03
33
32
26
16
27
28
30
34
35
36
23
B+
C4
C5
C3
B+
B-
P5-1
P5-2
05
P18-2
4H-23
3H-14
2H-13
4H-24
C2
-t°

Table of Contents

Other manuals for Skyjack SJ12 E

Related product manuals