EasyManua.ls Logo

Skyjack SJ12 E - 6.4 Push, winch and tow the MEWP; 6.5 Move the MEWP for transport

Skyjack SJ12 E
170 pages
Print Icon
To Next Page IconTo Next Page
To Next Page IconTo Next Page
To Previous Page IconTo Previous Page
To Previous Page IconTo Previous Page
Loading...
A B C D E F G H
V
Z
Y
X
W
58
SJ12 E, SJ16 E, SJ20 E
241914ACA
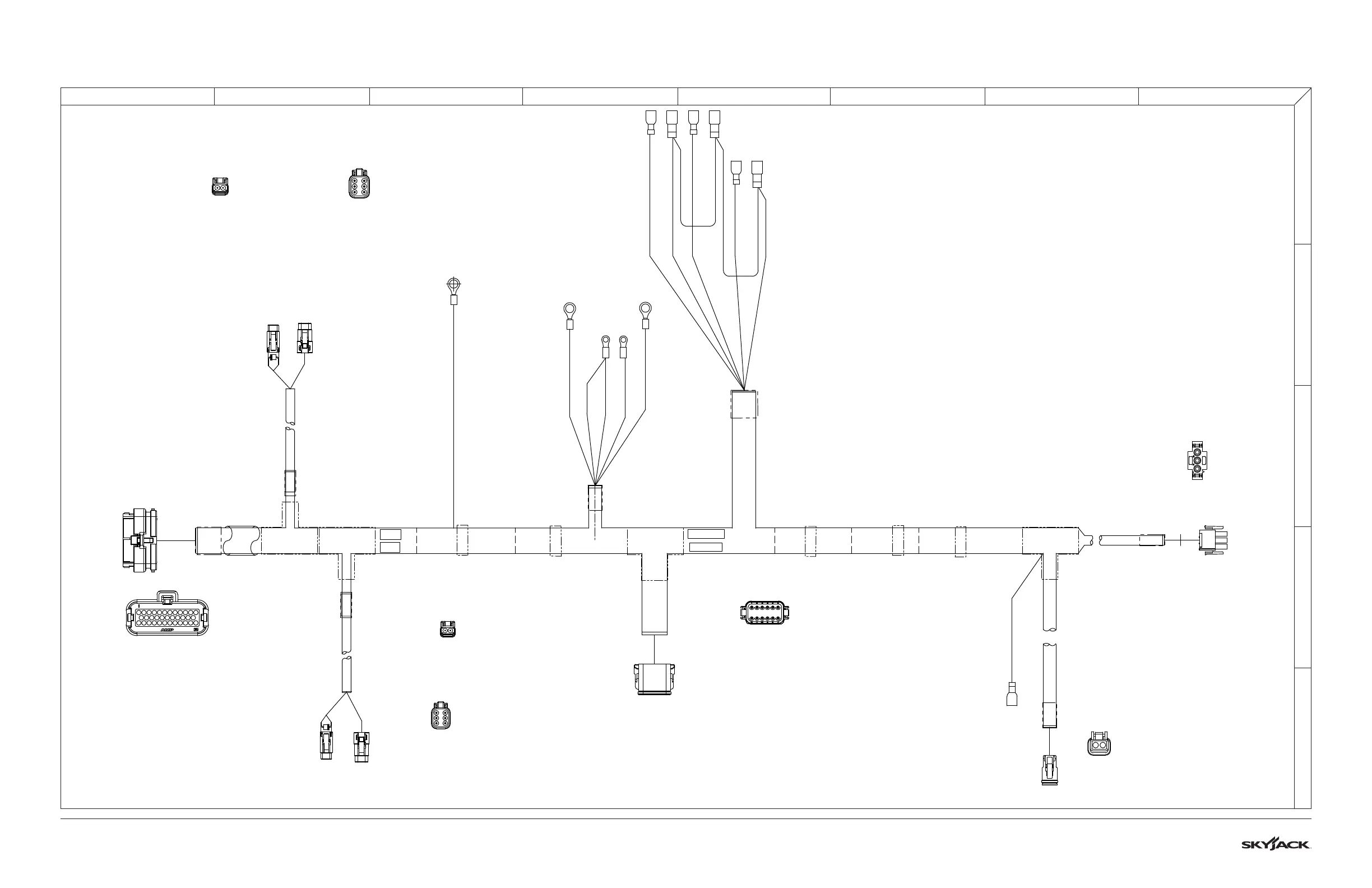
3.23 Main Harness - ZAPI A
1
2
TO CHARGER CUTOUT
PIN 1 - 37 GREEN/WHITE
PIN 2 - CANH
PIN 3 - CANL
P18
BACK VIEW
P5
BACK VIEW
TO MAST LOWER SOLENOID
PIN 1 - 13B ORANGE
PIN 2 - 13 ORANGE
1
2
P5
P18
JA
P8
TO RIGHT
MOTOR SENSOR
P10
TO LEFT MOTOR
SENSOR
TO BATTARY
NEGTIVE
00
S00R
S00L
S08L
P7
TO RIGHT
BRAKE
03B
19
03A
TO CONTACTOR
03B - GREEN/PURPLE
08C - PURPLE/WHITE
19 - GREEN/BLACK
03A - GREEN/PURPLE
08C
08C
SCANHI
P3
P9
TO LEFT
BRAKE
S05C
19A
TO TELEMATIC SYSTEM
PIN 1 - 19A - ORANGE/BLACK
SCANLO
TO MAST RAISE SOLENOID
14 - BLACK
03C - GREEN/PURPLE
24
03C
TO STEER L SOLENOID
24 - BLUE/BLACK
03C - GREEN/PURPLE
23
03C
TO STEER R SOLENOID
23 - BLACK/WHITE
03C - GREEN/PURPLE
14
03C
3
P3
BACK VIEW
TO LOWER CONTROL BOX
PIN 1 - 08 - PURPLE/WHITE
PIN 2 - 08C - PURPLE/WHITE
PIN 3 - 03A - GREEN/PURPLE
PIN 4 - 03B - GREEN/PURPLE
PIN 5 - 03C -
GREEN/PURPLE
PIN 6 - 29- BLUE/BLACK
PIN 7 - 08L - PURPLE/WHITE
PIN 8 - CAN HI - YELLOW
PIN 9 - CAN LO - GREEN
PIN 10 - 05C - PURPLE/BLACK
PIN 11 - 00 - WHITE
PIN 12 - NOT USED
1
6
7
12
TO LEFT MOTOR SENSOR
PIN 1 - 08L - PURPLE/WHITE
PIN 2 - 00L - WHITE
PIN 3 - CHBL - BLUE
PIN 4 - CHAL - BLUE/WHITE
PIN 5 - TMPL - BLACK/WHITE
PIN 6 - 00L WHITE
P10
BACK VIEW
1
2
3
4
5
6
P9
BACK VIEW
TO LFET BRAKE
PIN 1 - 05C - PURPLE/BLACK
PIN 2 - 30L - BLUE/RED
1
2
TO RIGHT MOTOR SENSORS
PIN 1 - 08R - PURPLE/WHITE
PIN 2 - 00R - WHITE
PIN 3 - CHBR - BLUE
PIN 4 - CHAR - BLUE/WHITE
PIN 5 - TMPR - BLACK/WHITE
PIN 6 - 00R - WHITE
P8
BACK VIEW
1
2
3
4
5
6
P7
BACK VIEW
TO RIGHT MOTOR
PIN 1 - 05C - PURPLE/BLACK
PIN 2 - 30R - BLUE/RED
1
2
PIN 19 - CHBL - BLUE
PIN 20 - CHBR - BLUE
PIN 21 - 00R - WHITE
PIN 22 - N/U
PIN 23 - 19A - ORANGE/BLACK
PIN 24 - 23 BLACK/WHITE
PIN 25 - 14 BLACK
PIN 26 - 13B - ORANGE
PIN 27 - 19 - ORANGE/BLACK
PIN 28 - 30R - BLUE/RED
PIN 29 - 13 - ORANGE
PIN 30 - 30L - BLUE/RED
PIN 31 - CANH - YELLOW
PIN 32 - TMPR - BLACK/WHITE
PIN 33 - TMPL - BLACK/WHITE
PIN 34 - N/U
PIN 35 - N/U
TO JA ON MOTOR CONTROLLER
PIN 1 - 24 - BLUE/BLACK
PIN 2 - 29 - BLUE/YELLOW
PIN 3 - 08C - PURPLE/WHITE
PIN 4 - 08L - PURPLE/WHITE
PIN 5 - N/U
PIN 6 - N/U
PIN 7 - 08 - PURPLE/WHITE
PIN 8 - 37 - GREEN/WHITE
PIN 9 - CHAR - BLUE/WHITE
PIN 10 - 08R - PURPLE/WHIE
PIN 11 - N/U
PIN 12 - N/U
PIN 13 - 03C - GREEN/PURPLE
PIN 14 - N/U
PIN 15 - 00L - WHITE
PIN 16 - N/U
PIN 17 - CHAL - BLUE/WHITE
PIN 18 - CANL - GREEN
JA
BACK VIEW
1
2
3
4
8
7
6
5
9 10 11
12
13
14
15
16 201918
17
21 22
23
24
25 26 27 31302928 32 33 34 35
M234292AA

Table of Contents

Other manuals for Skyjack SJ12 E

Related product manuals