EasyManua.ls Logo

Sony DNW-A75 - Page 242

Sony DNW-A75
246 pages
Print Icon
To Next Page IconTo Next Page
To Next Page IconTo Next Page
To Previous Page IconTo Previous Page
To Previous Page IconTo Previous Page
Loading...
C-12
DNW-A75/A75P
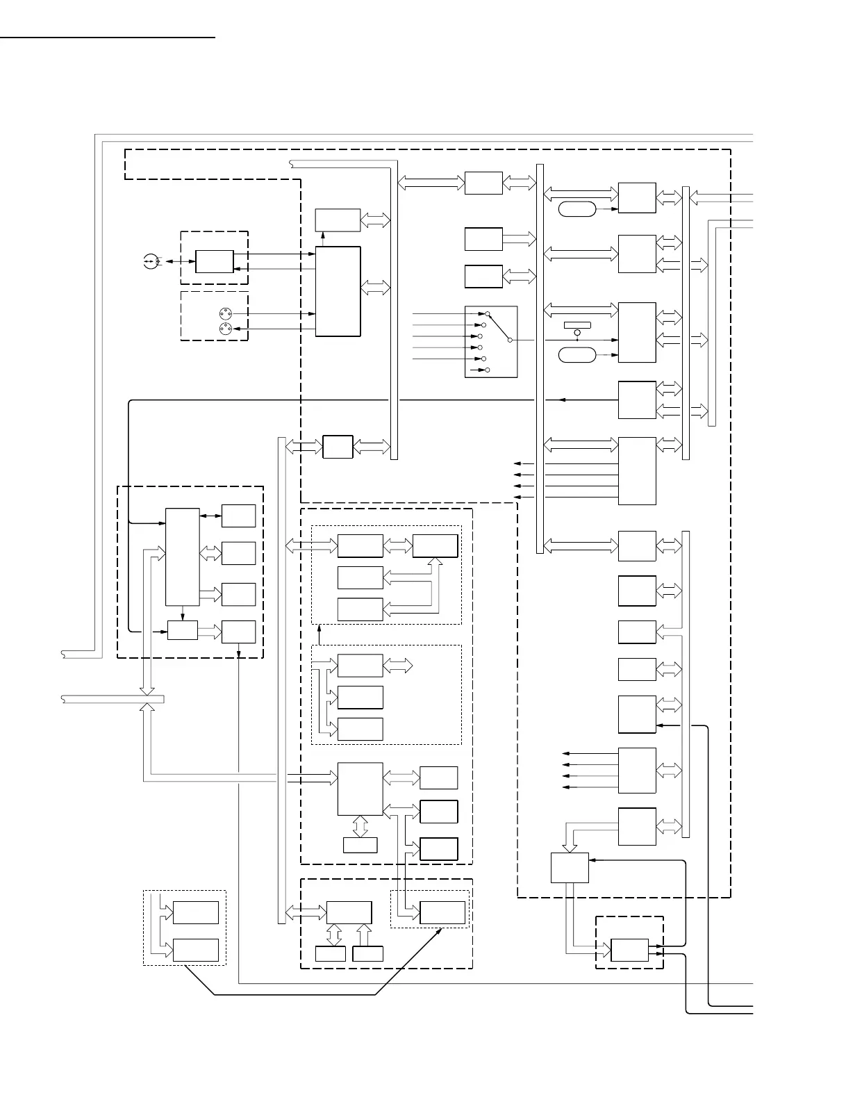
OVERALL (3/3) Block Diagram
REC SEL
MPX
ENCODE
INNER
IC908
IC107
GATE
IC2113(2/2)
IC112
IC2110-2112
RAM
SERVO
CPU
SERVO
IC
I/O
PORT
DRUM
I/O
PORT
IC103
IC313
IC115
IC314
IC500
TP300
HEAD SEL,
REC SEL
TIM PLS
Y D0
C D0
SS VD
AUTO DRUM PG
DRUM FG
PB LTC
LTC OUT
EXT LTC
BUS
BUFFER
MPU
EVR
BUFFER
TBC
PROCESSOR
LTC
UB MARK
IC2302
IC2301
REC LTC
CP-301
20 MHz
20 MHz
TC IN
TC OUT
REC/PB
PROCESS
LTC
TC HEAD
DETECT
H;FAST SEARCH
H;SV LOCK
TO DM-89
TO TBC-24
ROM
SV
IC303
D/A
ECC
SERVO ADDRESS/DATA BUS
IC109,110
IC2502
IC101-105
EQ-75
IC801
IC501,601
IC205,500
SDI-41
DEC-110
PIO
IC455
IC352
IC400
IC406
SETUP
REMOVER
VITC
GEN.
TC-102
IC
IC2700
DT
MPU
IC2708
DT ROM
IC2707
I/O
PORT
CTC
COUNTER
IC2900
L;REV/H;FWD
L;NOISELESS PB
PORT
DUAL
RAM
IC2709
DRIVER
CONTROL
DRIVE
A/D
IC106
IC112 IC111
BIMORPH
BIMORPH
SS-83(2/2)
TO/FROM SS-83(1/2) ON OVERALL(2/3)
HEAD SEL
MICOM
EQ
TO/FROM
OVERALL(2/3)
SIF2
SYS2(A BUS,D BUS)
DT-34D
NV-RAM
(EEPROM)
IC900
HEAD CONT.
DUAL
PORT
RAM
DT ADDRESS/DATA BUS
IC3100-3111
SERVO
IC2704
ADDRESS
DECODE
TO DM-89
TO TBC-24
IC2901-2903
TO DM-89
TO TBC-23A
TO TBC-23A/TBC-24
TO TBC-24
L;RF Y V BLK
L;RF C V BLK
L;Y PCM MUTE
L;C PCM MUTE
MPU
SY2 L
COMPOSITE
DECODE
MULTI-
PLEXER
IC317
IC600
VIDEO
INPUT
PROCESS
IC700
SY2 L(D BUS,A BUS,CS)
When the board is
suffix 11 or 12
SY2 S(A BUS,D BUS,CS)
IC916
RAM MPU
IC924
IC201
PROCESS
SDI DECODE
SDI ENCODE
PROCESS
IC502
IC250
PIO
IC301,601,802
ENC/DEC
EDH
AUDIO
RX TBC
IC600,910,913,725
PROCESS
AUDIO/VIDEO
CONTROL
EVR
IC457
When the board is suffix 11 or 13

Table of Contents

Related product manuals