EasyManua.ls Logo

Tadano GR-700N - Pressure Switch Installation Diagram

Tadano GR-700N
200 pages
Print Icon
To Next Page IconTo Next Page
To Next Page IconTo Next Page
To Previous Page IconTo Previous Page
To Previous Page IconTo Previous Page
Loading...
51 51
Z-10
IWZ02-616004aE
WZ02-6161E
Electric Parts Location Diagram (Upper)
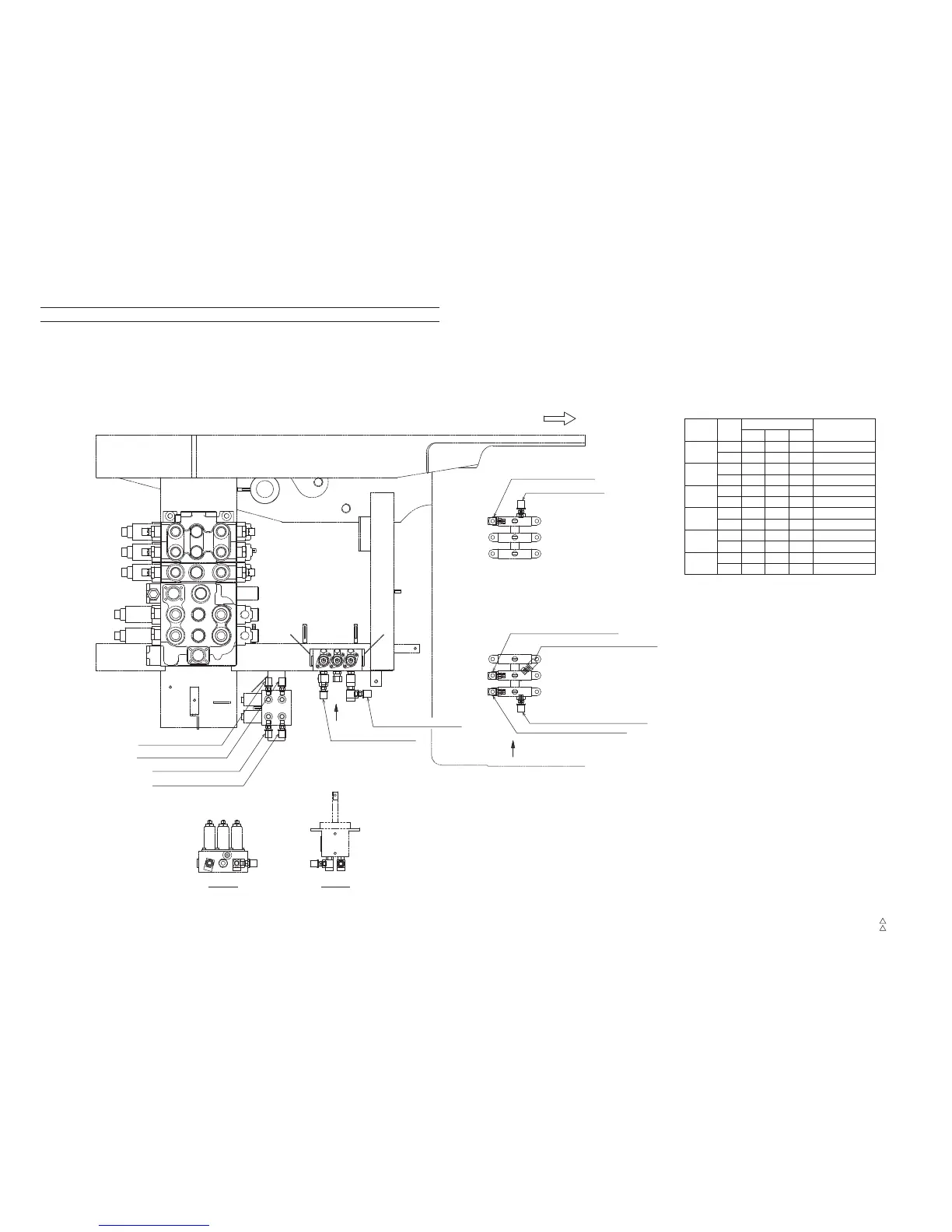
4. Pressure switch installation diagram
Z-10
Z-10
0
343-637-45500
1
343-637-52000
Front of cab
Aux. winch
Main winch
Elevation (*Telescoping/Jib)
Slewing
Telescoping/Jib (*Elevation)
Telescoping pedal
CN540 Right slewing detection
CN541 Left slewing detection
CN546 Main winch hoisting down detection
CN532 Main winch hoisting up detection
CN533 Aux. winch hoisting up detection
CN547 Aux. winch hoisting down detection
CN536 Boom raising detection
CN537 Boom lowering detection
CN539 Jib tilt lowering detection
CN538 Jib tilt raising detection
CN535 Boom retracting detection
CN534 Boom extending detection
View BView A
B
A
ON
Tilt lowering detection
Tilt raising detection
Hoisting up detection
OFF
OFF
ON
ON
ON
ONOFF
ON OFF Extending detection
ONON
ON
OFF ON
Left detection
Right detection
ON OFFON
ON and OFF indicate energization condition
of contact point.
Switch operation table
ONOFF ON
ON ONOFF
Lowering detection
Raising detection
Hoisting up detection
ON
OFFON
Neutral PushPull
Lever operation
Remarks
Hoisting down detectionON OFFON
ON OFFON Hoisting down detection
OFF
Main
winch
Jib
Slewing
Elevation
Telescoping
Aux.
winch
Switch
name
ON ON Retracting detection
Note: * indicate the TADANO layout.
Di No.
Di9
Di10
Di11
Di12
Di14
Di13
Di15
Di16
Di19
Di20
Di17
Di18

Table of Contents

Related product manuals