EasyManua.ls Logo

Tadano GR-700N - 2. Circuit diagram

Tadano GR-700N
200 pages
Print Icon
To Next Page IconTo Next Page
To Next Page IconTo Next Page
To Previous Page IconTo Previous Page
To Previous Page IconTo Previous Page
Loading...
86 86
Z-14
IWZ03-709004E
WZ03-7090E
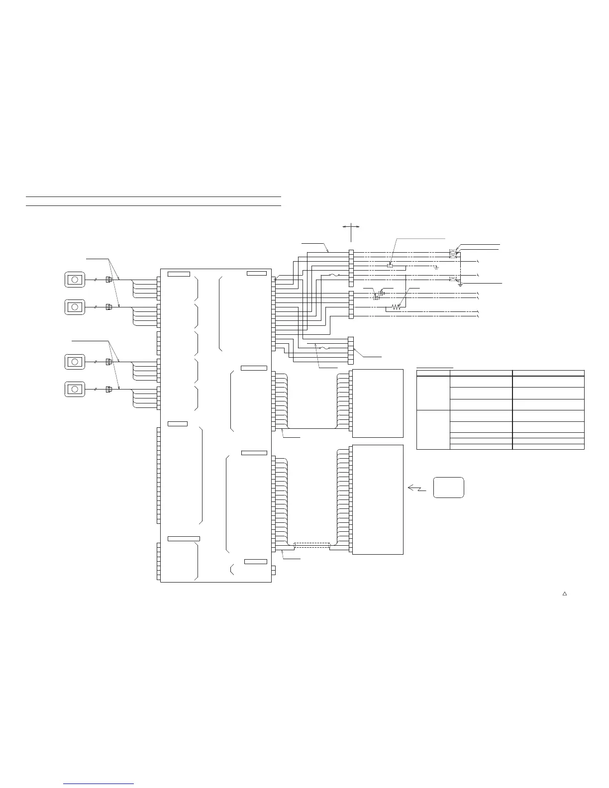
View System
2. Circuit diagram
Z-14
Z-14
0
343-819-93100
Section
View system
Vehicle wiring
system diagram
Connected with back camera setting
(option)
Connected with drum camera setting
(option)
CN840
CN841
FM antenna
CAMERA1
Connection of back camera
(option)
CAMERA2
Connection of drum camera
(option)
CAMERA3 Without connection
CN843
(Character display selection SW)
Connected
CAMERA4 Connection of left camera
CAMERA5 Connection of right camera
RC connection table
SW, connector Connection state
"Left camera"
or
"Main drum camera"
Vehicle wiring system diagramView system
Dual screens selection SW
Left camera selection SW
Right camera selection SW
CN842
GND
1
2
VIDEO IN
OPTION
SHIELDSHIELD
F Japan molex 6P
Character display selection SW
Close: Left/right
Open: Main/aux.
CN841
CN840
CN843
(430) R/L
(740) L/B
(740) L/B (Dual screens selection)
(742) L/R (Left camera selection)
W/ O
W/R
W/BR
W/ Y
W/ O
W/BR
GR
For TV tuner
V
R
O
W/B
B
BR
6
2
3
4
5
1
10A
GND
V_GND
N.C
V_OUT
VCC (+8V)
GND
V_GND
N.C
V_OUT
VCC (+8V)
GND
V_GND
N.C
V_OUT
VCC (+8V)
GND
V_GND
N.C
V_OUT
VCC (+8V)
2
3
4
5
1
2
3
4
5
1
2
3
4
5
1
2
3
4
5
1
2
3
4
5
1
8
7
6
5
4
3
2
1
AUDIO_MONO
AV_GND
N.C
TV_ON
N.C
PS_LOAD
N.C
VBS
PS_CLK
PS_DATA (COBOX)
SDA (12C)
SCL (12C)
S_METER
N.C
GND
V-GND
FM_DATA
FM_CLK
SHIELD
FM_CE
PS_DATA (TUNER)
20
19
18
17
16
15
14
2
3
4
5
6
7
8
9
10
11
1
12
13
1
9
8
7
6
5
4
3
2
20
19
18
17
16
15
14
10
11
12
13
22
21
20
19
18
17
16
15
14
2
3
4
5
6
7
8
9
10
11
1
12
13
AUDIO (MONO)
GND
2
3
4
5
6
7
8
9
10
11
1
12
13
2
3
4
5
6
7
8
9
10
11
1
12
13
L
O
6
5
4
3
2
1
8
7
4
3
5
6
1
2
YAZAKI CN(A)
M CN839 F
YAZAKI CN (A)
M CN838 F
FM_DATA
FM_CE
V-GND
S_METER
VBS (C.VIDEO)
SCL
SDA
FM_CLK
PS-DATA (TUNER)
PS-DATA (COBOX)
PS_CLK
N.C
PS_LOAD
( 35) BR
(430) R/L
(431) L/R
( 22) G
( 40) R
1.3KΩ
Display (Monitor)
Camera selector
NC
CAMERA3
CAMERA4
CAMERA5
TV
OPTION
+8V
GND
OFF
AUTO
MANUAL
CAMERA1
CAMERA2
( 0) B
(741) L/W (Right camera selection)
(431) L/R (Vehicle speed control)
(432) R/G (TV receiving condition)
( 22) G (PTO)
( 40) R (Reverse gear)
(432) R/G
(741) L/W
(742) L/R
( 0) B
( 0) B
BR
G/B
V/B
G
W/B
L
GR
( 35) BR
10A
Remote controller
N.C
N.C
N.C
N.C
TV_ON
N.C
AV_GND
V-GND
N.C
GND
+8V
OPTION
TV
FM_DATA
FM_CE
V_OUT
VCC (+8V)
N.C
V_GND
GND
PS-DATA (TUNER)
PS-DATA (COBOX)
PS_CLK
VBS (C.VIDEO)
OFF
CAMERA5
CAMERA4
CAMERA3
CAMERA2
CAMERA1
MANUAL
AUTO
2
3
4
5
6
7
8
9
10
11
16
CAMERA2
CAMERA1
SEL_L (Left camera selection)
ILL (12/24V)
CAMERA3
ACC (to TUNER)
Left/right, Main/aux. selection
SEL_2 (Dual screens selection)
ACC (12/24V)
CAMERA4, 5
ILL (to TUNER)
1
GND (Relay box, TUNER)
1
2
3
4
5
POWER BOX of dual screens correspondence
Drum camera
Back camera
GND
8V
S_METER
SCL (12C)
SDA (12C)
FM_CLK
12
SEL_R (Right camera selection)
13
PARKING (to TUNER)
14
REVERS (12/24V)
15
PARKING
O
B
O
BR
G
V/B
R
W/ Y
G/B
W/R
W/B
BR
W/B
CAMERA
REMOCON
MONITOR
TUNER
R
PS_LOAD
G
5V_OUT
B
A
V_GND
AUDIO_MONO
RED
GREEN
BLUE
SYNC_IN
GND
HSYNC_OUT
VSYNC_OUT
CONTROL
GRAPHIC (RGB)
POWER
"Right camera"
or
"Aux. drum camera"
Cable G
Cable C, Cable D,
Cable E, Cable F
Cable B
Cable A
Harness A

Table of Contents

Related product manuals