EasyManua.ls Logo

Tadano GR-700N - Align each Axle Using 1 St Axle as Datum Axle

Tadano GR-700N
200 pages
Print Icon
To Next Page IconTo Next Page
To Next Page IconTo Next Page
To Previous Page IconTo Previous Page
To Previous Page IconTo Previous Page
Loading...
69
WY05-3920E
Y-7
Y-7
Assembly Adjustment (Traveling Device)
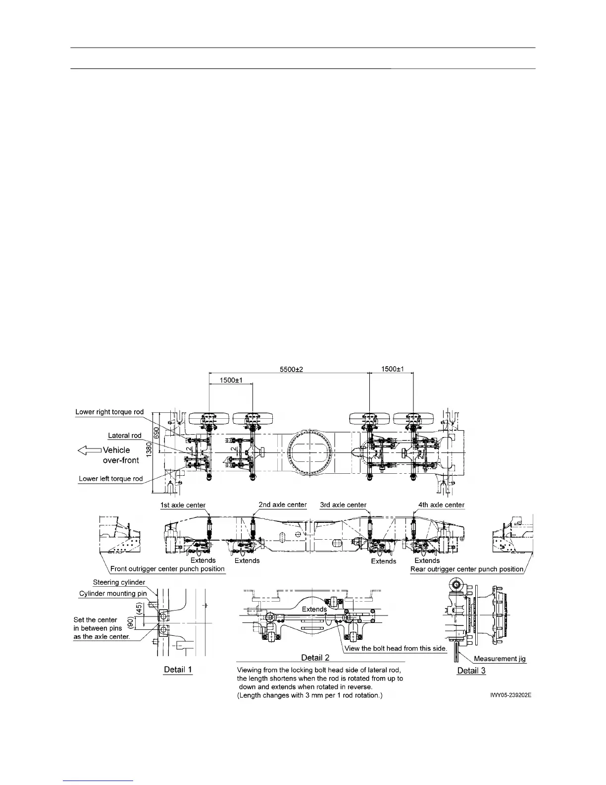
11.2 Align each axle using 1st axle as datum axle
1. Remove the greasing joints located under the king
pin of each axle, and mount the measurement jig.
(Refer to Detail 3)
2. Measure the distance between the 1st axle and
2nd axle, between the 1st axle and 3rd axle, and
between the 3rd axle and 4th axle (both left and
right).
For the dimensions, refer to the figure below.
3. If there is a dimensional deviation, adjust the
length of torque rods at the bottom surfaces on
the left and right.
Because only one adjustment-type torque rod is
mounted to each of the axles, make adjustments
by providing an adjustment-type torque rod to any
position where a length adjustment is necessary.
(Units: mm)

Table of Contents

Related product manuals