EasyManua.ls Logo

WEG SSW-06 - Page 190

WEG SSW-06
195 pages
Print Icon
To Next Page IconTo Next Page
To Next Page IconTo Next Page
To Previous Page IconTo Previous Page
To Previous Page IconTo Previous Page
Loading...
CHAPTER 10 - TECHNICAL SPECIFICATIONS
190
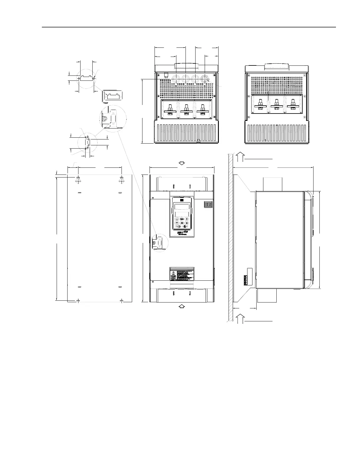
Figure 10.3 - 170A and 205A models (220 - 575V) or 130A and 170A models (575 - 690V)
* Dimensions in mm(in)
440
9.1
278
425
Y
(16.73)
(17.32)
337.2
AIR INLET
81.5
(3.21)
(13.28)
BOTTOM VIEW Y
223
51.4
37.5
R4.7 (4x)
Ø5.3 (2x)
36.5
(0.36)
(1.44)
(0.14)
(0.98)
(0.12)
15.8
150
(5.91)
(0.41)
21
(0.55)
(8.78)
X
(1.35)
17.3
(0.45)
Ø5.3 (2x)
(0.14)
41.4
(1.09)
TOP VIEW X
(10.94)
AIR OUTLET
Ø22.5 (4x)
74.3
107.3
46.5
79.5
(4.22)
(2.92)
(3.12)
(1.83)
(0.88)
222.2
(8.74)

Table of Contents

Other manuals for WEG SSW-06

Related product manuals