EasyManua.ls Logo

WEG SSW-06 - Page 191

WEG SSW-06
195 pages
Print Icon
To Next Page IconTo Next Page
To Next Page IconTo Next Page
To Previous Page IconTo Previous Page
To Previous Page IconTo Previous Page
Loading...
CHAPTER 10 - TECHNICAL SPECIFICATIONS
191
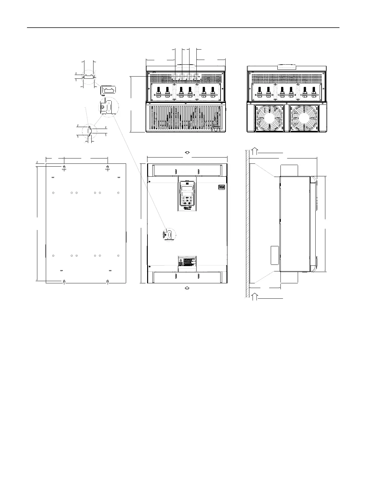
Figure 10.4 - 255A to 365A models (220 - 575V) or 205A to 365A models (575 - 690V)
* Dimensions in mm(in)
41.4
17.3
Ø5.3 (2x)
311
145
527.5
550
(20.78)
(21.65)
200
12.5
85
(0.49)
(3.34) (7.87)
(0.12)
R4.7 (4x)
Ø5.3 (2x)
(0.14)
(0.98)
37.5
21
(0.41)
15.8
(0.55)
51.4
(1.35)
370
(14.55)
BO TTO M VIEW Y
440
AIR IN LET
(5.71)
(13.28)
AIR O U TLET
(12.24)
TOP VIEW X
(0.45)
(1.09)
(0.14)
X
Y
Ø22.5 (4x)
(0.88)
257.1
133.9
33
133.9
33
(5.27)
(1.30)
(5.27)
(1.30)
(10.12)

Table of Contents

Other manuals for WEG SSW-06

Related product manuals