EasyManua.ls Logo

WEG SSW-06 - Page 192

WEG SSW-06
195 pages
Print Icon
To Next Page IconTo Next Page
To Next Page IconTo Next Page
To Previous Page IconTo Previous Page
To Previous Page IconTo Previous Page
Loading...
CHAPTER 10 - TECHNICAL SPECIFICATIONS
192
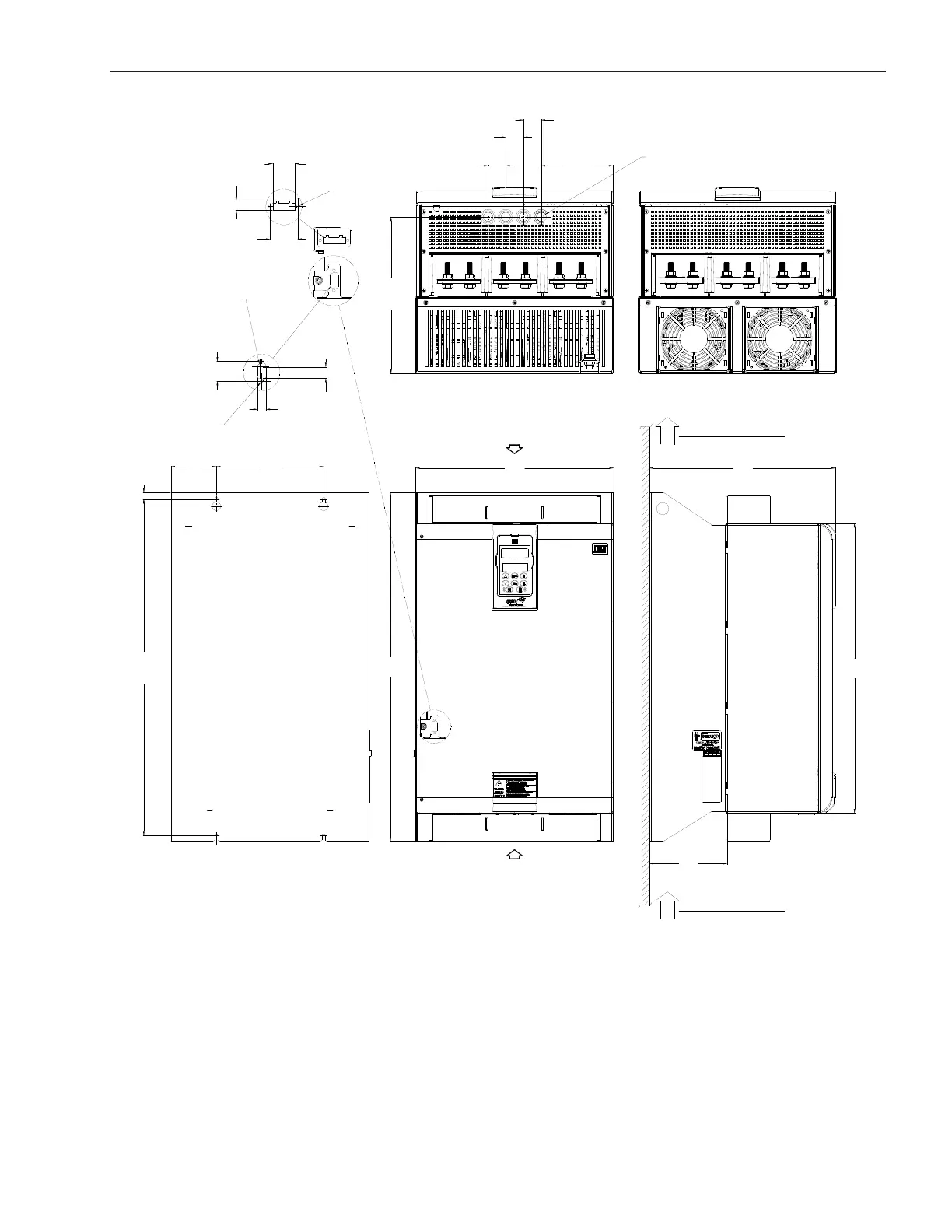
Figure 10.5 - 412A to 604A models
* Dimensions in mm(in)
BOTTOM VIEW Y
370
(14.55)
X
650
(25.59)
AIR IN LET
(5.71)
145
AIR O U TLET
(13.67)
Y
12.5
200
(0.49)
85
(3.34) (7.87)
627.5
(24.70)
347
540
(21.26)
41.4
51.4
15.8
21
17.3
R4.7 (4x)
(0.14)
(0.12)
Ø5.3 (2x)
37.5
(0.98)
(1.35)
(0.45)
(0.55)
(0.41)
(0.14)
Ø5.3 (2x)
(1.09)
TOP VIEW X
Ø22.5 (4x)
33
33
(1.30)
(1.30)
33
133.8
(5.27)
(1.30)
292.5
(11.52)

Table of Contents

Other manuals for WEG SSW-06

Related product manuals