EasyManua.ls Logo

Binder M 56 - Dimensions Size 115

Binder M 56
137 pages
Print Icon
To Next Page IconTo Next Page
To Next Page IconTo Next Page
To Previous Page IconTo Previous Page
To Previous Page IconTo Previous Page
Loading...
M (E3.1) 1/2023 page 122/136
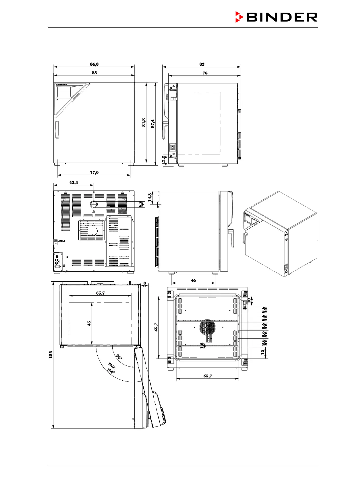
22.8 Dimensions size 115
[Dimensions in mm]

Table of Contents

Related product manuals