EasyManua.ls Logo

Binder M 56 - Dimensions Size 260

Binder M 56
137 pages
Print Icon
To Next Page IconTo Next Page
To Next Page IconTo Next Page
To Previous Page IconTo Previous Page
To Previous Page IconTo Previous Page
Loading...
M (E3.1) 1/2023 page 123/136
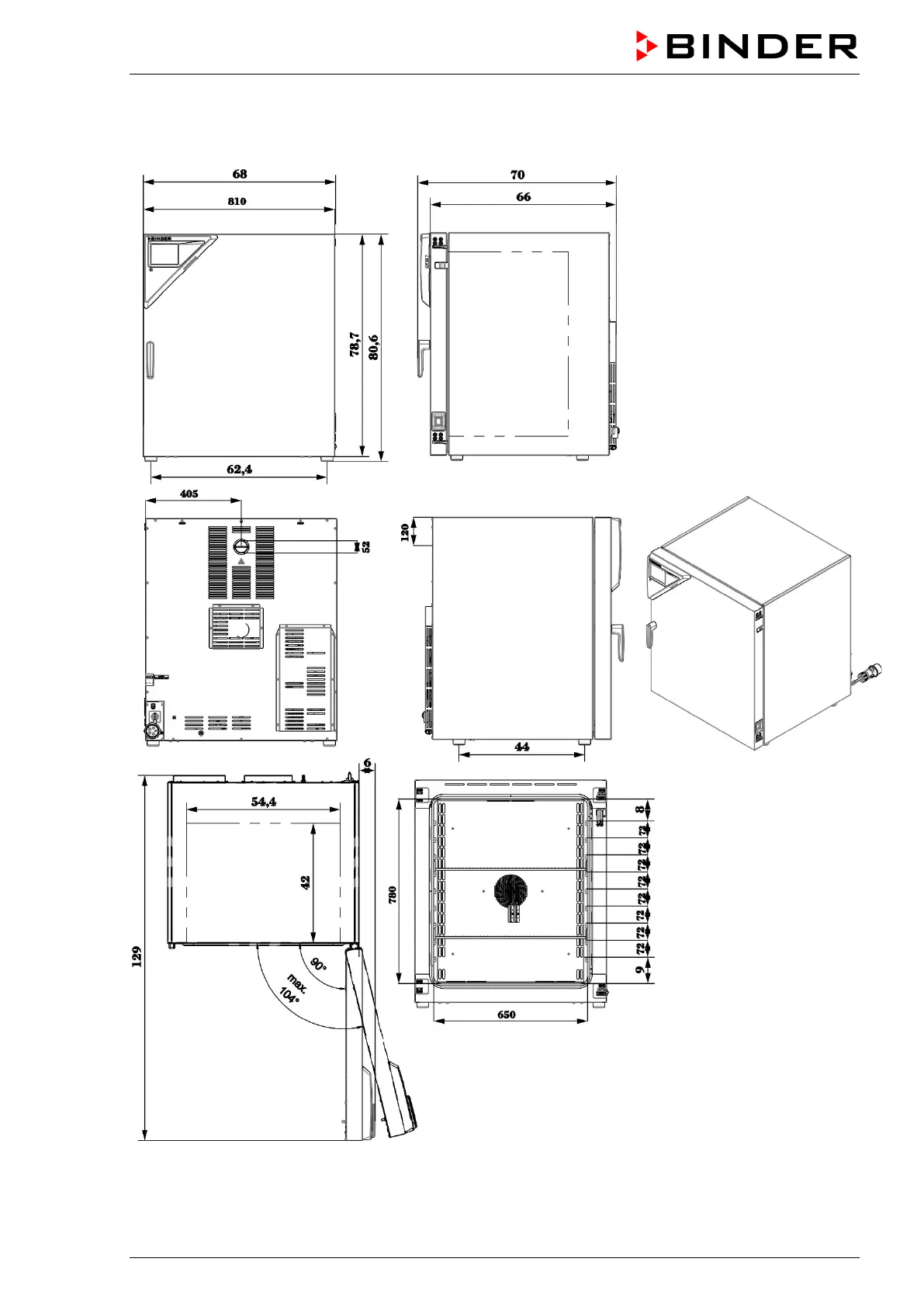
22.9 Dimensions size 260
[ Dimensions in mm]

Table of Contents

Related product manuals