EasyManua.ls Logo

ComAp InteliDrive DCU Industrial - 4.3 Getting started

ComAp InteliDrive DCU Industrial
350 pages
Print Icon
To Next Page IconTo Next Page
To Next Page IconTo Next Page
To Previous Page IconTo Previous Page
To Previous Page IconTo Previous Page
Loading...
InteliDrive DCU Industrial 3.4.0 Global Guide
45
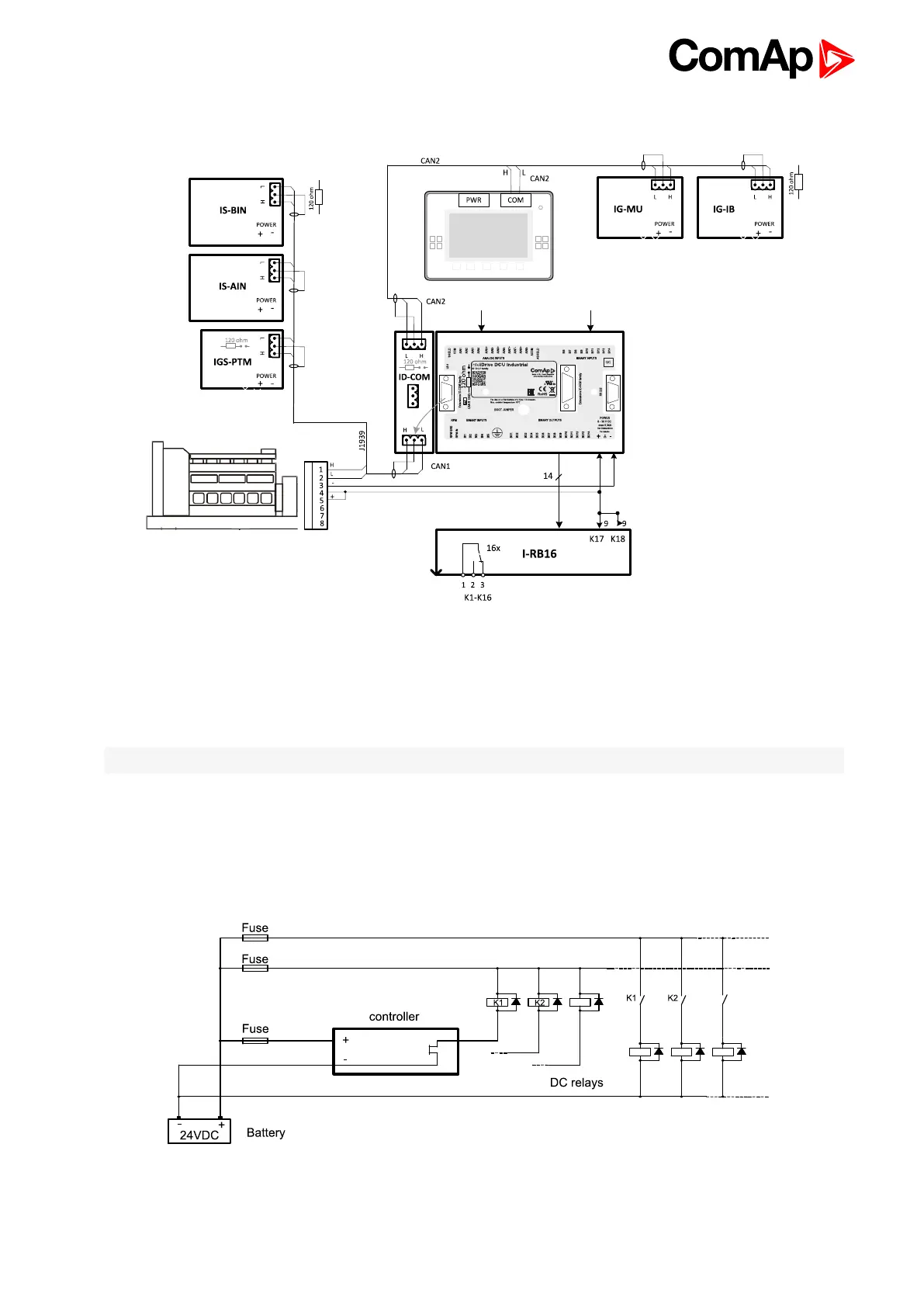
4.2.5 Wiring example - Complete system without RPU
4.3 Getting started
4.3.1 How to install
Note: All components shall be used within marked electrical ratings see chapter Technical data.
Binary output protections
Do not connect binary outputs directly to DC relays without protection diodes. Use protection diodes even if the
relays are not connected directly to controller outputs. Use a fast recovery 3A / 50V diodes.
Image 4.4 Example of controller protection

Table of Contents

Related product manuals