EasyManua.ls Logo

Evoqua DEPOLOX - Page 104

Evoqua DEPOLOX
178 pages
Print Icon
To Next Page IconTo Next Page
To Next Page IconTo Next Page
To Previous Page IconTo Previous Page
To Previous Page IconTo Previous Page
Loading...
104 WT.050.570.000.DE.IM.0714
Defining the Application DEPOLOX
®
Pool
2.5
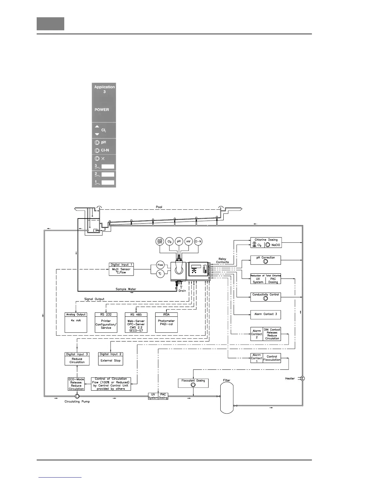
Application 3
Type 3222A3
Control system for Cl
2
, pH, total chlorine and conductivity:
Control for chlorine with positioner, dosing pump (pulse length con-
trolled or analog output) or pulse pump
Control for pH value by direct and invers with dosing pump (pulse
length controlled or analog output ) or pulse pump
Enable contact for activated powder carbon/UV disinfection unit
Control for conductivity with dosing pump (pulse length controlled
or analog output) or pulse pump
Up to three alarm outputs
DIN contact
Flocculation
W & T00044E
A p p l i c a t i o n 3
Fig. 28 Block diagram application 3

Table of Contents

Related product manuals