EasyManua.ls Logo

Fermax Cityline - Page 87

Fermax Cityline
100 pages
Print Icon
To Next Page IconTo Next Page
To Next Page IconTo Next Page
To Previous Page IconTo Previous Page
To Previous Page IconTo Previous Page
Loading...
84 2011 ACCESS CONTROL
2011 ACCESS CONTROL 85
84 2011 ACCESS CONTROL
2011 ACCESS CONTROL 85
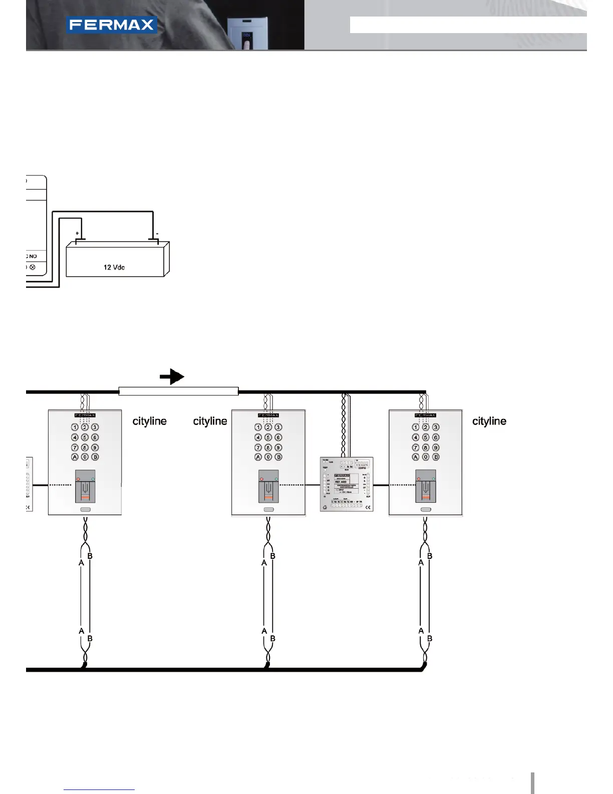
CENTRALISED
BATTERY

Table of Contents

Other manuals for Fermax Cityline

Related product manuals