EasyManua.ls Logo

Fuji Electric Frenic Mega Series - Page 671

Fuji Electric Frenic Mega Series
774 pages
To Next Page IconTo Next Page
To Next Page IconTo Next Page
To Previous Page IconTo Previous Page
To Previous Page IconTo Previous Page
Loading...
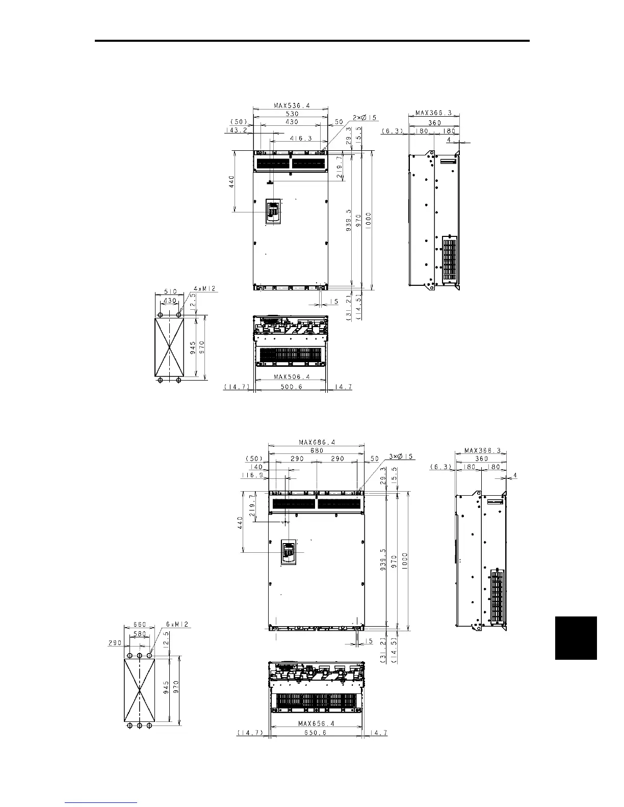
12.5 External Dimensions
12-23
Chapter 12 SPECIFICATIONS
Unit: mm
FRN132G1
-4J, FRN160G1-4J
FRN200G1
-4J, FRN220G1-4J
Figure 12.5-14
Figure 12.5-15

Table of Contents

Related product manuals