EasyManua.ls Logo

Fuji Electric Frenic Mega Series - Page 705

Fuji Electric Frenic Mega Series
774 pages
To Next Page IconTo Next Page
To Next Page IconTo Next Page
To Previous Page IconTo Previous Page
To Previous Page IconTo Previous Page
Loading...
App. A Advantageous Use of Inverters (Notes on Electrical Noise)
A-9
App.
No.
Tar ge t
device
Problem Noise prevention
Notes
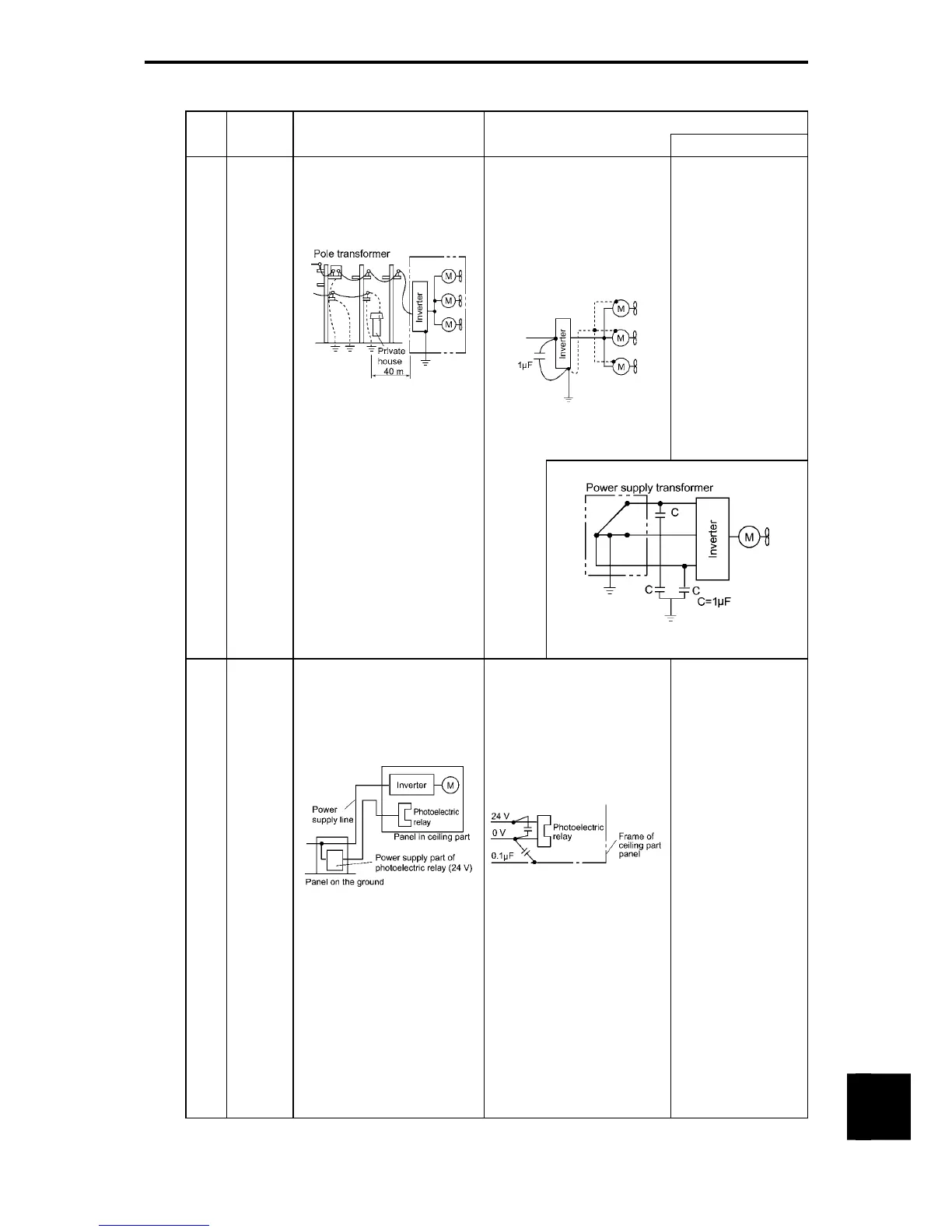
1) Connect the ground terminals
of the motors in a common
connection. Return to the
inverter panel, and insert a
1µF capacitor between the
input terminal of the inverter
and ground.
Figure A-17
1) The effect of the
inductive filter and
LC filter may not be
expected because
of sound frequency
component.
2) In the case of a
V-connection power
supply transformer
in a 200 V system, it
is necessary to
connect capacitors
as shown in the
following figure,
because of different
potentials to ground.
3 Telephone
(in a
common
private
residence
at a
distance of
40 m)
When driving a ventilation fan with
an inverter, noise enters a
telephone in a private residence at
a distance of 40 m.
Figure A-16
<Possible cause>
A high-frequency leakage current
from the inverter and motor flowed
to grounded part of the telephone
cable shield. During the current's
return trip, it flowed through a
grounded pole transformer, and
noise entered the telephone by
electrostatic induction.
Figure A-18
4
Photo-
electric
relay
A photoelectric relay malfunctioned
when the inverter runs the motor.
[The inverter and motor are
installed in the same place (for
overhead traveling)]
Figure A-19
<Possible cause>
It is considered that induction noise
entered the photoelectric relay
since the inverter's input power
supply line and the photoelectric
relay's wiring are in parallel
separated by approximately 25 mm
over a distance of 30 to 40 m. Due
to conditions of the installation,
these lines cannot be separated.
1) As a temporary measure,
Insert a 0.1µF capacitor
between the 0 V terminal of
the power supply circuit in the
detection unit of the overhead
photoelectric relay and a
frame of the overhead panel.
Figure A-20
2) As a permanent measure,
move the 24 V power supply
from the ground to the
overhead unit so that signals
are sent to the ground side
with relay contacts in the
ceiling part.
1) Separate the cables.
(30 cm or more)
2) When separation is
impossible, signals
can be received and
sent with dry
contacts etc.
3) Do not wire
low-current signal
lines and power
lines in parallel.

Table of Contents

Related product manuals