EasyManua.ls Logo

Lenovo ThinkSystem SR670 V2 - System-Board Leds

Lenovo ThinkSystem SR670 V2
390 pages
To Next Page IconTo Next Page
To Next Page IconTo Next Page
To Previous Page IconTo Previous Page
To Previous Page IconTo Previous Page
Loading...
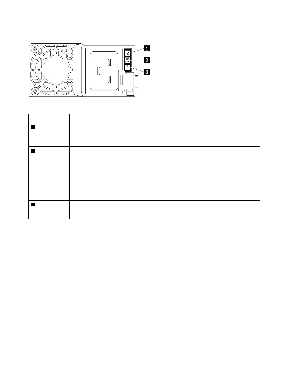
Each hot-swap power supply has three status LEDs:
Figure 269. Power supply LEDs
LED Description
1 Input status The input status LED can be in one of the following states:
Off: The power supply is disconnected from the ac power source.
Green: The power supply is connected to the ac power source.
2 Output status The output status LED can be in one of the following states:
Off: The server is powered off, or the power supply is not working properly. If the server is
powered on but the output status LED is off, replace the power supply.
Slow blinking green (about one flash every two seconds): The power supply is in cold
redundancy active mode.
Fast blinking green (about 2 flashes each second): The power supply is in cold redundancy
sleep mode.
Green: The server is on and the power supply is working normally.
3 Fault LED
Off: The power supply is working normally
Amber: The power supply has failed. To resolve the issue, replace the power supply.
System-board LEDs
The following illustrations show the light-emitting diodes (LEDs) on the system board.
Press the power button to light the LEDs on the system board when the power source has been removed
from the server.
342
ThinkSystem SR670 V2 Maintenance Manual

Table of Contents

Related product manuals