EasyManua.ls Logo

Lenze 9300 vector Series - Montage Avec Équerres de Fixation (Standard)

Lenze 9300 vector Series
330 pages
Go to English
To Next Page IconTo Next Page
To Next Page IconTo Next Page
To Previous Page IconTo Previous Page
To Previous Page IconTo Previous Page
Loading...
Installation mécanique
Appareils de base pour la plage de puissance de 75 ... 90 kW
Montage avec équerres de fixation (standard)
4
271
EDKVF9333V DE/EN/FR 7.2
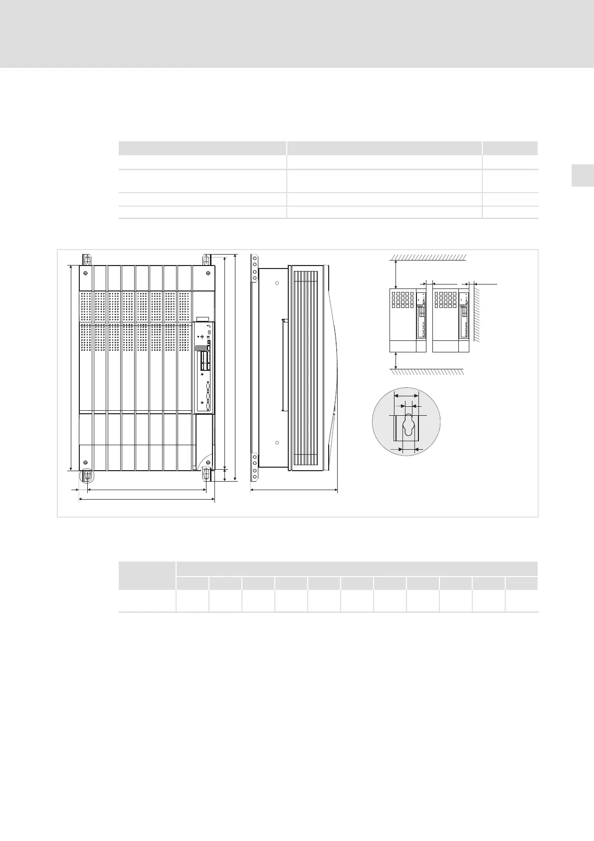
4.5.2 Montage avec équerres de fixation (standard)
Matériel de montage requis (compris dans l’équipement standard) :
Description Fonction Quantité
Equerre de montage Fixation du variateur de vitesse 4
Vis à tête hexagonale M8 × 16 mm
(DIN 933)
Pour les équerres de fixation 8
Rondelle Æ 8,4 mm (DIN 125) Pour les vis à tête hexagonale 8
Rondelle Grower Æ 8 mm (DIN 127) Pour les vis à tête hexagonale 8
Encombrements
a
c1
e
b1
d
d1
b
l
c
³ 50mm
³ 50mm
g
m
k
0
³ 100mm
³ 100mm
9300vec134
Fig.4−15 Montage standard avec équerres de fixation 75 ... 90 kW
Lors de la juxtaposition des appareils, prévoir un espace afin de pouvoir démonter les boulons
à oeillet.
9300 vector Encombrements [mm]
Type a b b1 c c1 d d1 e
1)
g k m
EVF9332−EV
EVF9333−EV
450 750 680 28,5 393 702 38 285 11 28 18
1)
Si un module bus de terrain est enfiché sur X1, prévoir un espace de montage supplémentaire pour le câble de
raccordement.
Montage
ƒ Monter les équerres de fixation sur le radiateur du variateur de vitesse.

Table of Contents

Other manuals for Lenze 9300 vector Series

Related product manuals