EasyManua.ls Logo

Lenze 9300 vector Series - Page 86

Lenze 9300 vector Series
330 pages
Go to English
To Next Page IconTo Next Page
To Next Page IconTo Next Page
To Previous Page IconTo Previous Page
To Previous Page IconTo Previous Page
Loading...
Elektrische Installation
Grundgeräte im Leistungsbereich 55 kW
Motoranschluss
5
86
EDKVF9333V DE/EN/FR 7.2
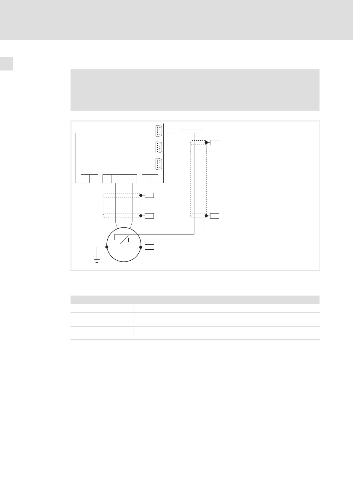
Motor mit Temperatursensor KTY
Hinweis!
ƒ Wir empfehlen, für die Verdrahtung Lenze−Systemleitungen zu verwenden.
ƒ Bei selbstkonfektionierten Leitungen nur Leitungen mit paarweise
verdrillten und abgeschirmten Adern verwenden.
PE
U
VW
T1 T2
+UG -UG
PES
PES
PE
M
3~
PES
PES
KTY
X8/5
X8/8
PES
X8
X9
X10
9300vec121
Abb. 5−18 Schaltplan Motoranschluss mit Temperatursensor KTY am Inkrementalgeber−Eingang X8
Eigenschaften des Anschlusses für die Motortemperatur−Überwachung:
Pin X8/5, X8/8 vom Inkrementalgeber−Eingang (X8)
Anschluss Linearer Temperatursensor KTY
Auslösepunkt l Warnung: Einstellbar
l Fehler (TRIP): Fest bei 150 °C
Bemerkungen l Die Überwachung ist in der Lenze−Einstellung nicht aktiv.
l Der Temperatursensor KTY wird auf Unterbrechung und Kurzschluss überwacht.

Table of Contents

Other manuals for Lenze 9300 vector Series

Related product manuals