EasyManua.ls Logo

Liebert Hipulse E - Page 37

Liebert Hipulse E
151 pages
Print Icon
To Next Page IconTo Next Page
To Next Page IconTo Next Page
To Previous Page IconTo Previous Page
To Previous Page IconTo Previous Page
Loading...
Chapter 4 – ‘1+N’ System Liebert Hipulse E Installation Manual
Single or '1+N' UPS System
Page 4-2 (07/04)
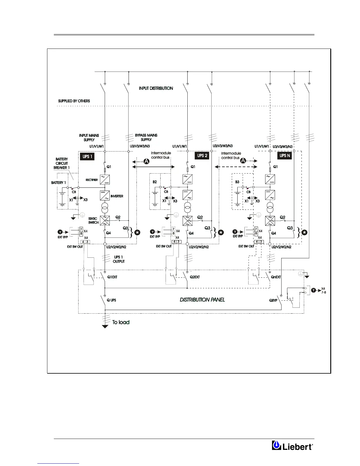
Figure 4-1 '1+N' System block diagram with separate batteries.
(*) See the warning message at the bottom of page 4-1.

Table of Contents

Related product manuals