EasyManua.ls Logo

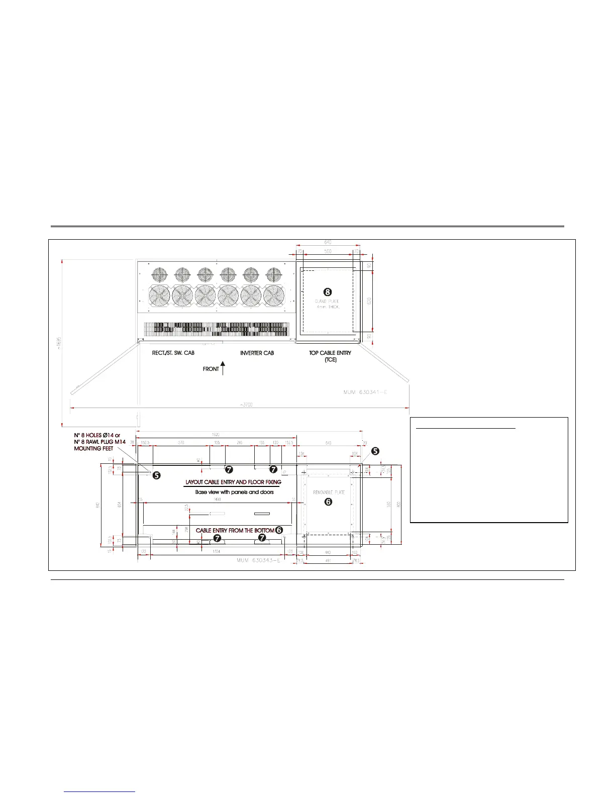
Liebert Hipulse E - 300 Kva UPS Module with 6 Pulse Rectifier with Top Cable Entry Option - Top and Base View

Liebert Hipulse E
151 pages
Print Icon
To Next Page IconTo Next Page
To Next Page IconTo Next Page
To Previous Page IconTo Previous Page
To Previous Page IconTo Previous Page
Loading...
Installation Manual Liebert Hipulse E Chapter 6 – Installation Drawing
Single or '1+N' UPS System
(07/04) Page 6-5
6.1.4 300kVA UPS Module with 6 pulse rectifier with Top Cable entry option – Top and base view
Layout cable entry and floor fixing
ase view with panels and doors
5. N°8 holes 14 for securing unit to floor (if
required)
- N° 8 rawl plug M14 -
- Mounting feet
6. Bottom cable entry
7. Load supporting feet
8. Top cable entry ( user to size and cut holes for
the cables to be used)
A
ll dimensions are in mm.

Table of Contents

Related product manuals