EasyManua.ls Logo

Liebert Hipulse E - Common Battery Box (Option); Common Battery Box for Two UPS in Parallel

Liebert Hipulse E
151 pages
Print Icon
To Next Page IconTo Next Page
To Next Page IconTo Next Page
To Previous Page IconTo Previous Page
To Previous Page IconTo Previous Page
Loading...
Chapter 4 – ‘1+N’ System Liebert Hipulse E Installation Manual
Single or '1+N' UPS System
Page 4-6 (07/04)
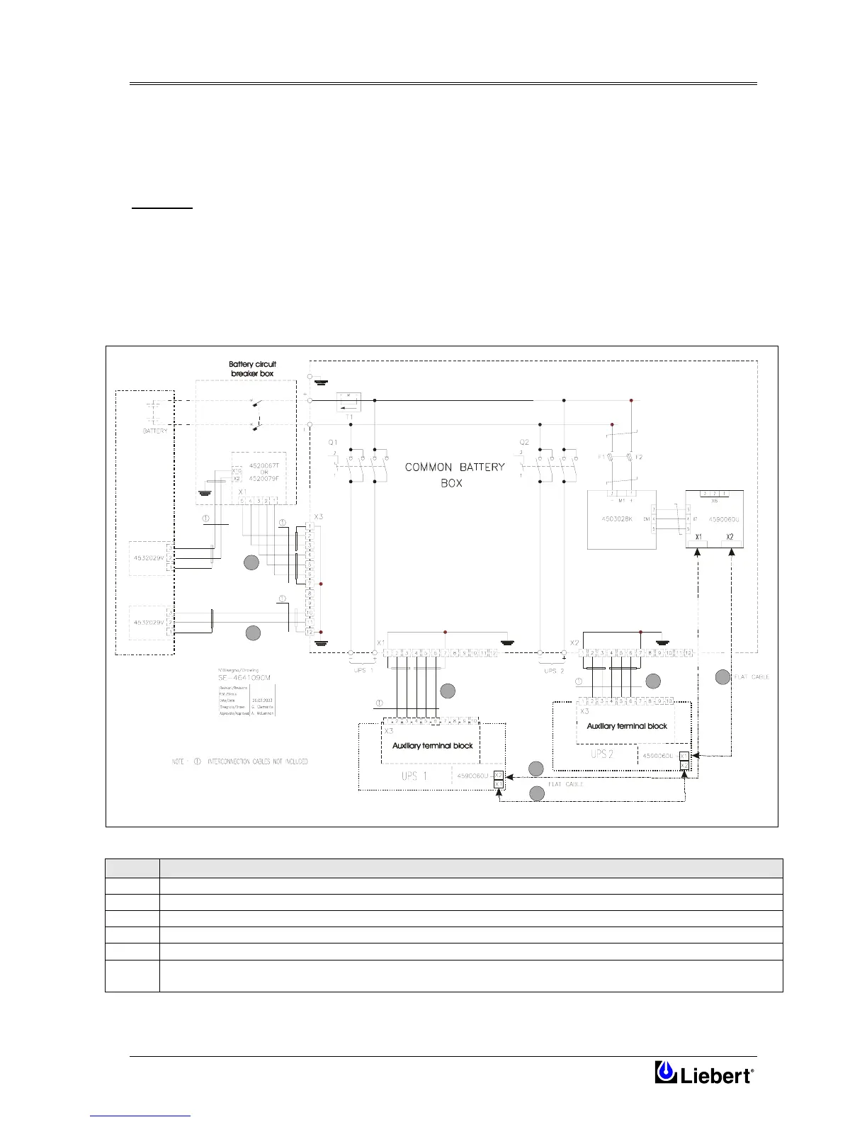
4.3 Common battery box (Option)
4.3.1 Common Battery box for two UPS in parallel
A common battery box is available to permit a common battery to be shared between two modules (see fig.4-6).
The box, which is used to connect the DC busbar of the two modules to a common battery, should be fitted as close
as possible to the UPS modules, with cabling preferably of the same length.
Warning
There is no protection to prevent closing a module's battery isolation switch when its rectifier is shut down. Such
operation will trip the battery circuit breaker and rupture the battery fuse in that module.
Before operating the module's battery isolation switch, the operator must first check that the battery voltage and
rectifier voltage different by less than 10% — this may be easily achieved by reading the Battery Voltage on the
Display Panels of both modules.
Control cable connections are required as shown in Fig. 4-5, this includes an extension of the inter-module cables
described in Section 4.2.4. In addition there are other auxiliary connections that are identified in the figure below.
Figure 4-5 -
Common Battery Box - connection details
Cable
A From common battery box (X3) to battery circuit breaker control board (X1) of BCB box
B Auxiliary cables for battery sensor
C&D Auxiliary cables from UPS terminal block to common battery box
F
From common battery box (X1) to parallel connectoring board (X2) of UPS1 (Ribbon cable)
G
From common battery box (X2) to parallel connectoring board (X1) of UPS2 (Ribbon cable)
E
Intermodule cables between parallel connectoring board (X1) of UPS1 and parallel connectoring board (X2) of
UPS2 (Ribbon cable)
A
B
C
D
E
F
G

Table of Contents

Related product manuals