EasyManua.ls Logo

Liebert Hipulse E - Page 42

Liebert Hipulse E
151 pages
Print Icon
To Next Page IconTo Next Page
To Next Page IconTo Next Page
To Previous Page IconTo Previous Page
To Previous Page IconTo Previous Page
Loading...
Installation Manual Liebert Hipulse E Chapter 4 - ‘1+N’ System
Single or '1+N' UPS System
(07/04) Page 4-7
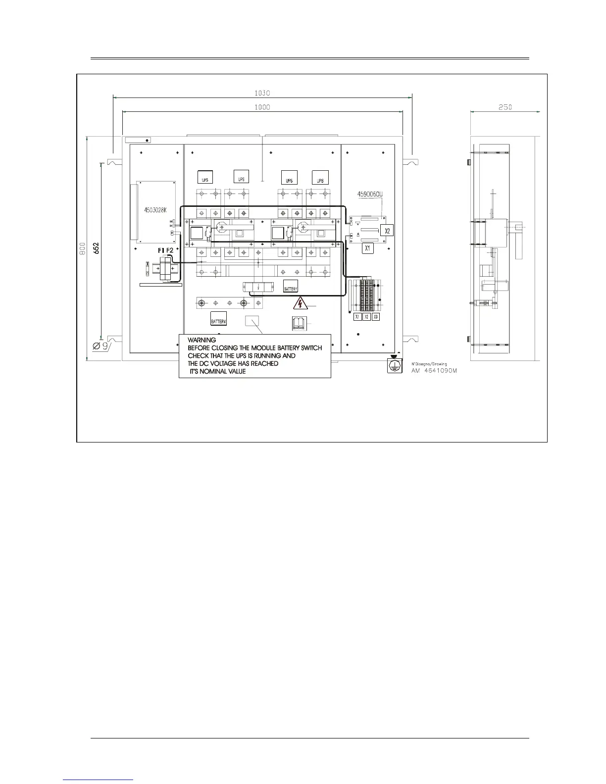
Figure 4-6 Common battery box 800A (300 kVA Hipulse)
Weight: 85 kg.
6
11
12
10
8
9
7
1
3
4
5
2
FUSES TYPE gl - 1 A / 50 0 V ~ SIZE 10 x 38
Q1
Q2
+
_
+
+
_
_

Table of Contents

Related product manuals