EasyManua.ls Logo

Liebert Hipulse E - Cable Connections for 300; 400 Kva UPS with Battery Circuit Breaker

Liebert Hipulse E
151 pages
Print Icon
To Next Page IconTo Next Page
To Next Page IconTo Next Page
To Previous Page IconTo Previous Page
To Previous Page IconTo Previous Page
Loading...
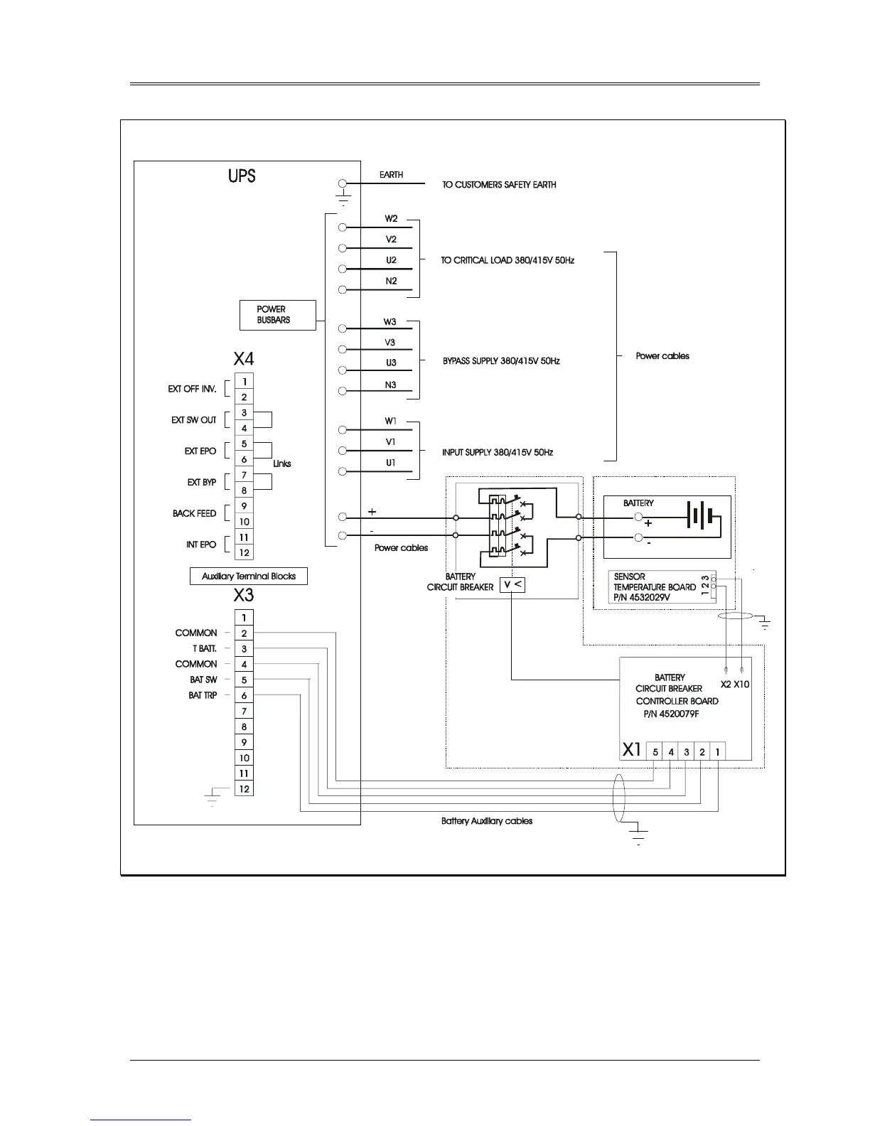
Installation Manual Liebert Hipulse E Chapter 6 – Installation Drawing
Single or '1+N' UPS System
(07/04) Page 6-21
6.1.20 Cable connections for 300 / 400 kVA UPS with Battery Circuit Breaker

Table of Contents

Related product manuals