EasyManua.ls Logo

Liebert Hipulse E - Battery Control

Liebert Hipulse E
151 pages
Print Icon
To Next Page IconTo Next Page
To Next Page IconTo Next Page
To Previous Page IconTo Previous Page
To Previous Page IconTo Previous Page
Loading...
Chapter 4 – ‘1+N’ System Liebert Hipulse E Installation Manual
Single or '1+N' UPS System
Page 4-4 (07/04)
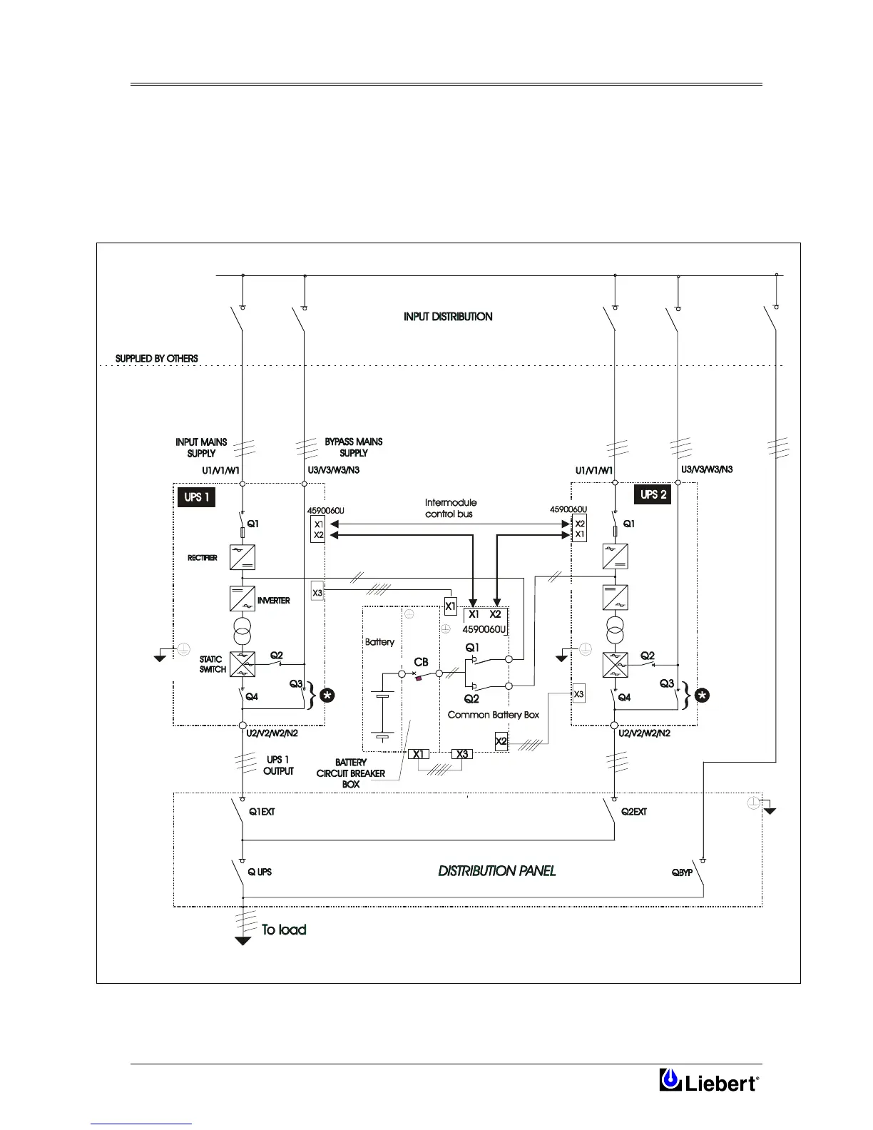
4.2.5 Battery Control
The system is designed to operate with two different battery configurations:
With separate batteries
Installation procedure is the same as for single module.
With common battery (only for two units)
In order that the battery charge current is shared equally between the modules, a ‘common battery’ option kit is
available. (see Figure 4-6).
Figure 4-3 System with common battery
(*) See the warning message at the bottom of page 4-1.

Table of Contents

Related product manuals