EasyManua.ls Logo

Phoenix Contact RAD-900-DAIO6

Phoenix Contact RAD-900-DAIO6
140 pages
To Next Page IconTo Next Page
To Next Page IconTo Next Page
To Previous Page IconTo Previous Page
To Previous Page IconTo Previous Page
Loading...
Description of I/O extension modules
3827_en_B PHOENIX CONTACT 25/138
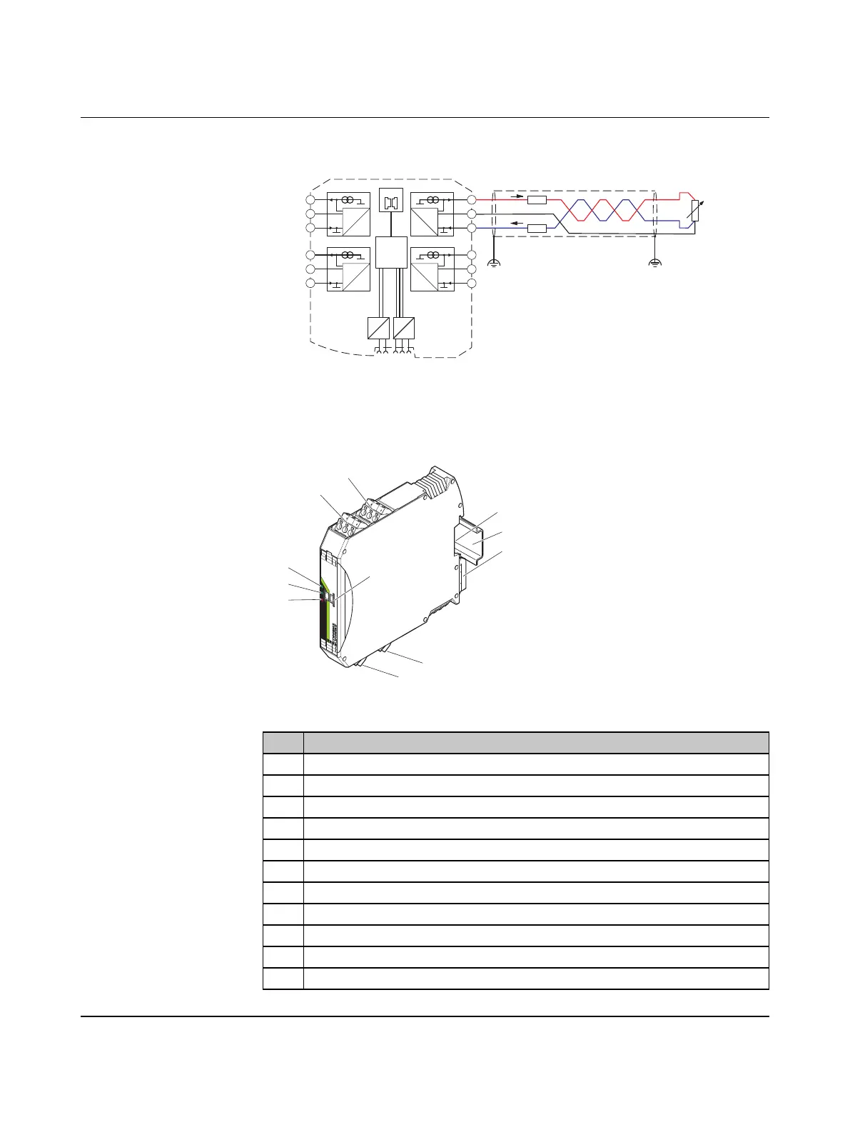
3-wire connection technology with twisted pair cables and shielding
Figure 3-13 3-wire connection technology with twisted pair cables and shielding
3.2.4 Structure
Figure 3-14 RAD-PT100-4-IFS structure
Item Designation
1 Pt 100 input 2 for 2- and 3-wire sensors
2 Pt 100 input 1 for 2- and 3-wire sensors
3 White thumbwheel for setting the I/O-MAP address
4 Connection option for DIN rail connector
5 DIN rail
6 Metal foot catch for DIN rail fixing
7 Pt 100 input 3 for 2- and 3-wire sensors
8 Pt 100 input 4 for 2- and 3-wire sensors
9 ERR status LED, red (communication error)
10 DAT status LED, green (bus communication)
11 PWR status LED, green (supply voltage)
µC
2.1
2.2
2.3
3.1
3.2
3.3
5.1
5.2
5.3
4.1
4.2
4.3
IO-MAP
0
1
DC
DC
IFS
IFS
A
D
1mA
A
D
1mA
A
D
1mA
A
D
1mA
-I2
-U2
+I2
+I1
-U1
-I1
+I3
-U3
-I3
+I4
-U4
-I4
RL
RL
I+
I–
U–
RTD
ϑ
IO-MAP
RAD-PT100-4-IFS
PW
R
D
AT
ER
R
8
8
+
I
1
+
I
2
-
U
1
-
U
2
-I
1
-
I
2
I
3
I
4
-
U
3
-
U
4
-
I
3
-
I
4
+
I
1
+
I
2
-
U
1
-U
2
-
I
1
-
I
2
1
2
3
4
6
8
11
10
9
7
5

Table of Contents

Related product manuals