EasyManua.ls Logo

Pulsar Ultra 4 - Fascia Mount

Pulsar Ultra 4
190 pages
Print Icon
To Next Page IconTo Next Page
To Next Page IconTo Next Page
To Previous Page IconTo Previous Page
To Previous Page IconTo Previous Page
Loading...
PULSAR MEASUREMENT
21
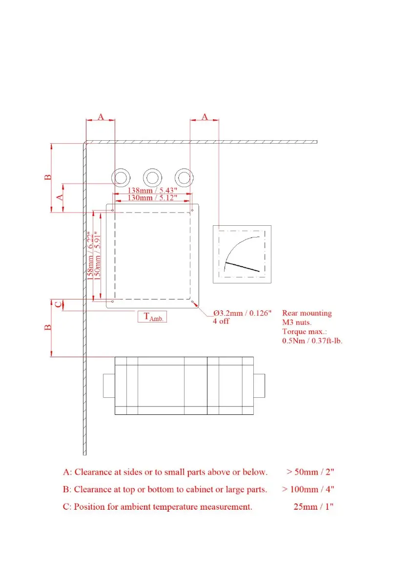
Fascia Mount
The Fascia mount Ultra 4 should be installed by cutting a rectangular hole
and four fixing holes in the panel as detailed below.
Observe minimum clearances to the cabinet and other equipment as shown.

Table of Contents

Related product manuals