EasyManua.ls Logo

Skyjack SJ6826RT - Outrigger Electrical Assembly

Skyjack SJ6826RT
177 pages
Print Icon
To Next Page IconTo Next Page
To Next Page IconTo Next Page
To Previous Page IconTo Previous Page
To Previous Page IconTo Previous Page
Loading...
V
W
Y
Z
L
M N
O
F
G
H
K
X
I
J
EDCBA
U
T
S
R
78
SJ6826RT, SJ6832RT
213560ABA
1
2
4
3
DEUTSCHDEUTSCH
3
4
2
1
1
2
4
3
DEUTSCHDEUTSCH
3
4
2
1
6
3
5
2
4
1
31 2
54 6
DEUTSCH
OUTR CTRL BOX - CN20
ANSI/CE/AS
KC
PART #
PART #
146112
146113
146114
PART #
TO OUTRIGGER
CONTROL BOX
CONTROL CABLE
ELECTRIC PANEL - CN14
138055
TO OUTRIGGER LIMIT SWITCHES
138054
PART #
PART #
RH
LH
OUTRIGGER LIMIT SWITCHES - CN22
36
OUTR MANIFOLD - CN21
4
1
5 6
2 3
7
4
8 9
1
5
2
6
3
3
2
1
7 8 9 10 11 12 4
PART #
137991
35C
86
87a
30
85
87
OUTRIGGER LIMIT SWITCHES
PIN 1 - 61 RED
PIN 2 - 62 GREEN
PIN 3 - 62 RED
PIN 4 - 63 GREEN
PIN 5 - 63 RED
PIN 6 - 64 GREEN
PIN 7 - 64 RED
PIN 8 - N/U
PIN 9 - 10A BLACK
PIN 10 -10A BLACK
PIN 11 -10A BLACK
PIN 12 -10A BLACK
PIN 13 -N/U
PIN 14 -N/U
PIN 15 -N/U
PIN 16 -65A WHITE
J17D
J17E
9CR3
61CR
65
-
-
-
10A
10A
-
64
64
10A
62
63
63
61
62
10A
76
75
71
77
78
73
74
72
35C
CN20
9CR2
17BCR 65CR
D36
CN22
ENABLE
FRONT LEFT
FRONT RIGHT
D74D77D78D72D71D76D75 D73
REAR RIGHT
REAR LEFT
D17B-1
D17B-2
CN21
72
74
73
78
77
71
75
76
17C
02
CN14
36A
02
28
02
09
10A
17B
28A
86A
44
61
36
JUMP J17E
PIN 7 - 14 BLACK (2x)
PIN 8 - 17A BLUE/BLACK (KC)
17B BLUE/BLACK (ANSI/CE/AS)
PIN 9 - 43 RED/BLACK
PIN 10 - 43A RED/WHITE
PIN 11 - 86A ORANGE/BLACK/WHITE
PIN 12 - 86D ORANGE/BLACK/WHITE
HYDRAULIC GENERATOR 12 PIN CONNECTOR PLUG
PIN 1 - EMPTY
PIN 2 - EMPTY
PIN 3 - EMPTY
PIN 4 - 02 WHITE (2x)
PIN 5 - 2A ORANGE/BLACK
PIN 6 - 09 ORANGE
1 2 4 53 7 8 9 10 12116
CONTROL MODULE - P2
PIN 1 - 68A WHITE
PIN 2 - 67A RED/WHITE
PIN 3 - 66A BLUE/WHITE
PIN 4 - 65A GREEN/WHITE
PIN 5 - 70 GREEN/BLACK
PIN 6 - 79 GREEN
PIN 7 - 70A RED/WHITE
PIN 8 - 65 GREEN/BLACK
PIN 9 - N/U
PIN 10 - 44 RED
PIN 11 - 02 WHITE (2x)
PIN 12 - 10A BLACK
CONTROL MODULE - P4
PIN 1 - 78 BLACK/WHITE
PIN 2 - 77 BLUE/BLACK
PIN 3 - 76 RED/BLACK
PIN 4 - 75 ORANGE/BLACK
PIN 5 - 74 BLACK
PIN 6 - 73 BLUE
PIN 7 - 72 RED
PIN 8 - 71 ORANGE
PIN 9 - 35C WHITE/BLACK
OUTRIGGER CONTROL BOX
PIN 1 - 35C WHITE/BLACK (x2)
PIN 2 - 78 BLACK/WHITE (x2)
PIN 3 - 73 BLUE (x2)
PIN 4 - 77 BLUE/BLACK (x2)
PIN 5 - 74 BLACK (x2)
PIN 6 - 71 ORANGE (x2)
PIN 7 - 75 ORANGE/BLACK (x2)
PIN 8 - 72 RED (x2)
PIN 9 - 76 RED/BLACK (x2)
OUTRIGGER MANIFOLD
PIN 1 - 17C WHITE/BLACK
PIN 2 - 02 WHITE
PIN 3 - 78 BLACK/WHITE
PIN 4 - 73 BLUE
PIN 5 - 77 BLUE/BLACK
PIN 6 - 74 BLACK
PIN 7 - 71 ORANGE
PIN 8 - 75 ORANGE/BLACK
PIN 9 - 72 RED
PIN 10 - 76 RED/BLACK
D36-1
TO LIMIT SWITCHES
PIN 1 - 65 GREEN/BLACK
PIN 2 - 65A GREEN/WHITE
PIN 3 - 66A BLUE/WHITE
PIN 4 - 67A RED/WHITE
PIN 5 - 68A WHITE
PIN 6 - N/U
BACK VIEW BACK VIEW
BACK VIEW
4
3
1
2
17C - WHITE/BLACK
02 - WHITE
14 16159 12 1310 117 85 62 3 41
1 32 54 6 87 9
987653 421 10
PIN 1 - 73 BLUE
PIN 2 - 02 WHITE
PIN 1 - 72 RED
PIN 2 - 02 WHITE
PIN 1 - 71 ORANGE
PIN 2 - 02 WHITE
PIN 1 - 74 BLACK
PIN 2 - 02 WHITE
LEFT REAR OUTR UP LEFT FRONT OUTR UP RIGHT FRONT OUTR UP RIGHT REAR OUTR UP
PIN 1 - 76 RED/BLACK
PIN 2 - 02 WHITE
PIN 1 - 77 BLUE/BLACK
PIN 2 - 02 WHITE
PIN 1 - 78 BLACK/WHITE
PIN 2 - 02 WHITE
PIN 1 - 75 ORANGE/BLACK
PIN 2 - 02 WHITE
RIGHT REAR OUTR DOWNRIGHT FRONT OUTR DOWNLEFT FRONT OUTR DOWNLEFT REAR OUTR DOWN
PIN 2 - WHITE (67A)
PIN 4 - RED (63)
PIN 2 - WHITE (66A)
PIN 4 - RED (62)
PIN 2 - WHITE (68A)
PIN 4 - RED (64)
RIGHT REAR OUTRIGGER:
PIN 1 - BLACK (10A)
PIN 3 - GREEN (64)
RIGHT FRONT OUTRIGGER:
PIN 1 - BLACK (10A)
PIN 3 - GREEN (63)
LEFT REAR OUTRIGGER:
PIN 1 - BLACK (10A)
PIN 3 - GREEN (10A)
LEFT FRONT OUTRIGGER:
PIN 1 - BLACK (10A)
PIN 3 - GREEN (62)
PIN 2 - WHITE (65A)
PIN 4 - RED (36)
(ANSI/CE/AS)
TO OUTR CTRL MODULE
(KC)
TO TILT SWITCH
PIN 1 - 10A BLACK
PIN 2 - 28 GREEN
PIN 3 - 02 WHITE
PIN 4 - 44 RED
P4
P2
TO CONTROL MODULE
PIN 1 - 65 GREEN/BLACK
PIN 2 - 65A WHITE
PIN 3 - 66A WHITE
PIN 4 - 67A WHITE
PIN 5 - 68A WHITE
PIN 6 - N/U
OUTRIGGER ELECTRIC PANEL
PIN 1 - 28A GREEN/WHITE
PIN 2 - 17A BLUE/BLACK (KC)
17B BLUE/BLACK (ANSI/CE/AS) (2x)
PIN 3 - 86A ORANGE/BLACK/WHITE
PIN 4 - 10A BLUE/WHITE
PIN 5 - 09 ORANGE (2x)
PIN 6 - 44 RED
PIN 7 - 28 GREEN/BLACK
PIN 8 - 02 WHITE (2x)
PIN 9 - 02 WHITE/BLACK
PIN 10 - 36A YELLOW
PIN 11 - 61 GREEN
PIN 12 - 36 YELLOW
02
02
02
78
75
02
02
76
77
02
02
73
72
02
02
71
74
02
1 2 4 53 7 8 9 10 12116
36
36
02
17C
TO ELECTRIC PANEL
OUTR CONTROL BOX
PIN 1 - 02 WHITE
PIN 2 - 35C WHITE/BLACK
PIN 3 - 70 GREEN/BLACK
PIN 4 - 70A RED/WHITE
PIN 5 - 71 ORANGE
PIN 6 - 72 RED
PIN 7 - 73 BLUE
PIN 8 - 74 BLACK
PIN 9 - 75 ORANGE/BLACK
PIN 10 - 76 RED/BLACK
PIN 11 - 77 BLUE/BLACK
PIN 12 - 78 BLACK/WHITE
PIN 13 - 79 GREEN
PIN 14 - 35C WHITE
PIN 15 - 35C GREEN
86D
02
14
36A
14A
UP RELAY - 14CR
PIN 30 - 36A YELLOW
PIN 85 - 14 BLACK
PIN 86 - 02 WHITE
PIN 87 - 14A BLK/WHT
PIN 87a - N/U
REF: 138052AE
36
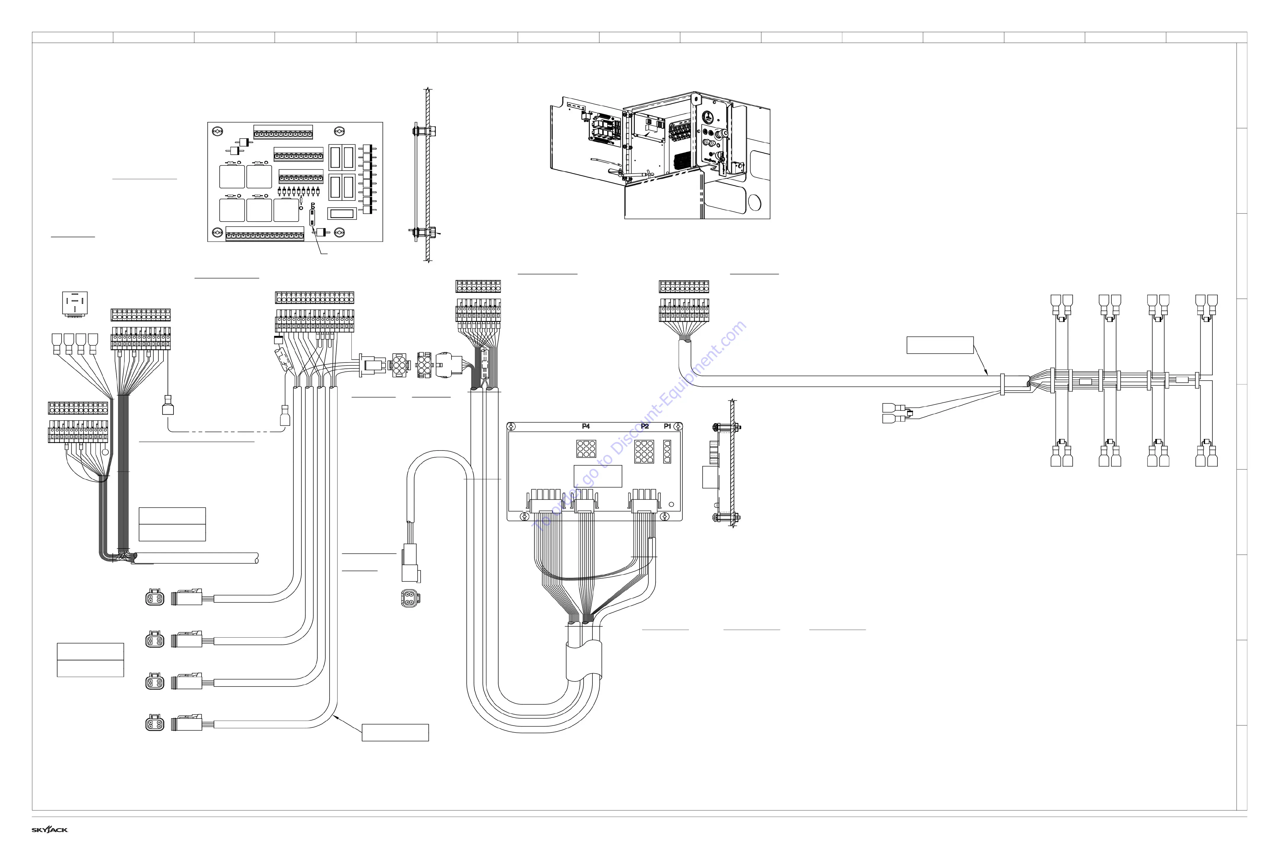
3.31 Outrigger Electrical Assembly
3.31 Outrigger Electrical Assembly
M146115AD
To order go to Discount-Equipment.com

Table of Contents

Related product manuals