EasyManua.ls Logo

YASKAWA A1000 HHP - Page 153

YASKAWA A1000 HHP
360 pages
Print Icon
To Next Page IconTo Next Page
To Next Page IconTo Next Page
To Previous Page IconTo Previous Page
To Previous Page IconTo Previous Page
Loading...
n
L8-03: Overheat Pre-Alarm Operation Selection
Sets the operation when an overheat pre-alarm is detected.
Note: Change L8-03 setting only when necessary.
No. Name Setting Range Default
L8-03 Overheat Pre-Alarm Operation Selection 0 to 4 3
Setting 0: Ramp to Stop
If an overheat alarm occurs, the drive decelerates to stop using the currently selected deceleration time. If a digital output is
programmed for “fault” (H2-oo = E), this output will be triggered.
Setting 1: Coast to Stop
If an overheat alarm occurs, the drive switches off the output and the motor coasts to stop. If a digital output is programmed
for “fault” (H2-oo = E), this output will be triggered.
Setting 2: Fast Stop
If an overheat alarm occurs, the drive decelerates to stop using the Fast Stop time (C1-09). If a digital output is programmed
for “fault” (H2-oo = E), this output will be triggered.
Setting 3: Alarm Only
If an overheat alarm occurs, an alarm is output and the drive continues operation.
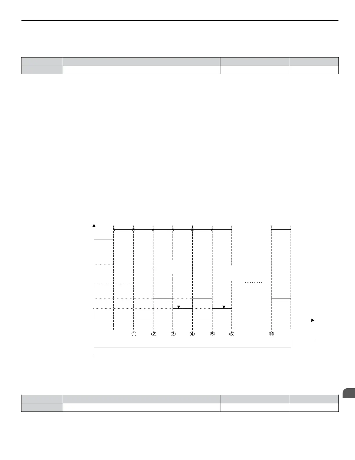
Setting 4: Operation with Reduced Speed
If an overheat alarm occurs, the operation continues with the speed reduced to the level set to parameter L8-19. If the oH alarm
is still present after 10 s, the speed is reduced again. The amount of speed reduction depends on how often the alarm repeats.
If the oH alarm disappears while the drive is operating at a reduced speed, the drive will switch to the previous speed in 10 s
increments until reaching base frequency. Figure 1.105 explains the operation with reduced speed during an oH alarm. A
digital output programmed for 4D is switched when the oH alarm is still active after ten reduction cycles.
10 s
etc.
time
10 s 10 s 10 s 10 s 10 s 10 s
f
ref
× (L8-19)
f
ref
× (L8-19)
2
f
ref
× (L8-19)
4
f
ref
× (L8-19)
3
f
ref
Output frequency
Reset oH
Alarm
Reset oH
Alarm
Digital output (4D)
oH
Alarm
oH
Alarm
oH
Alarm
oH
Alarm
oH alarm number
Figure 1.105 Output Frequency Reduction During Overheat Alarm
n
L8-19: Frequency Reduction Rate during Overheat Pre-Alarm
Specifies the output frequency reduction when L8-03 is set to 4 and an oH alarm is present.
No. Name Setting Range Default
L8-19 Frequency Reduction Rate During Overheat Pre-Alarm 0.1 to 0.9 0.8
n
L8-05: Input Phase Loss Protection Selection
Enables or disables the input phase loss detection.
1.8 L: Protection Functions
YASKAWA ELECTRIC SIEP YEAHHP 01B YASKAWA AC Drive – A1000 HHP Programming Manual
153
1
Parameter Details

Table of Contents

Related product manuals