EasyManua.ls Logo

YASKAWA SGD7W - Page 119

YASKAWA SGD7W
337 pages
Print Icon
To Next Page IconTo Next Page
To Next Page IconTo Next Page
To Previous Page IconTo Previous Page
To Previous Page IconTo Previous Page
Loading...
6.3 User-Assembled Wiring Materials for Servomotor Main Circuit Cables
6.3.3 Standard-Structure Servomotor Connectors for 850 W to 15 kW
6-13
6
Cables and User-Assembled Wiring Materials for SGM7G Rotary Servomotors
For Servomotors with Holding Brakes
A Servomotor Connector and Brake Power Supply Connector are required.
The Servomotor Connector is also used for Servomotors without Holding Brakes.
Note: 1. Yaskawa does not specify what wiring materials to use. Use appropriate wiring materials for the current
specifications and connectors.
2. Brake Power Supply Connector Kits are available from Yaskawa Controls Co., Ltd. Use the following model
numbers.
*1. M-size Connector Kits are available as a standard products.
*2. A 357J-50448T Crimping Tool from DDK Ltd. is required.
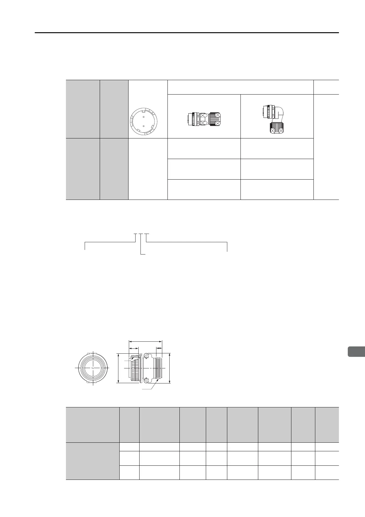
External Dimensions
Straight Plugs: N/MS3106B-S
Unit: mm
Servomo-
tor Model
Capacity
Servomotor
Connector
Model
(Receptacle)
Order Number
Manu-
facturer
Straight Plug
Right-Angle Plug
DDK
Ltd.
SGM7G-09
SGM7G-13
SGM7G-20
SGM7G-30
SGM7G-44
SGM7G-55
SGM7G-75
SGM7G-1A
SGM7G-1E
850 W to
15 kW
CM10-R2P-D
CM10-SP2S-S-D
Applicable cable diameter:
4.0 mm to 6.0 mm
CM10-AP2S-S-D
Applicable cable diameter:
4.0 mm to 6.0 mm
CM10-SP2S-M-D
Applicable cable diameter:
6.0 mm to 9.0 mm
CM10-AP2S-M-D
Applicable cable diameter:
6.0 mm to 9.0 mm
CM10-SP2S-L-D
Applicable cable diameter:
9.0 mm to 11.6 mm
CM10-AP2S-L-D
Applicable cable diameter:
9.0 mm to 11.6 mm
Part
Shell
Size
Joint Thread
A
Length
of Joint
J±0.12
Tot al
Length
L Max.
Joint Nut
Outer
Diameter
QDia.
Cable
Clamp
Mounting
Thread
V
Effec-
tive
Thread
Length
W Min.
Maxi-
mum
Width
Y Max.
N/MS3106B-
S
18 1-1/8-18UNEF 18.26 52.37 34.13 1-20UNEF 9.53 42
22 1-3/8-18UNEF 18.26 55.57 40.48
1-3/16-
18UNEF
9.53 50
32 2-18UNS 18.26 61.92 56.33
1-3/4-
18UNS
11.13 66
1
2
J Z S P - C V B 9 - S M S2 - E
Connector Shape
S: Straight plug
A: Right-angle plug
Contact Pin Type
S2: Soldered
C3: Crimped
*2
Bush Size
*1
S: S size (4.0 mm to 6.0 mm dia.)
M: M size (6.0 mm to 9.0 mm dia.)
L: L size (9.0 mm to 11.6 mm dia.)
J
W
A
V
Y
Q
L
+0
-0.38

Table of Contents

Related product manuals