EasyManua.ls Logo

ABB ACS880-104

ABB ACS880-104
406 pages
To Next Page IconTo Next Page
To Next Page IconTo Next Page
To Previous Page IconTo Previous Page
To Previous Page IconTo Previous Page
Loading...
3
3a
4
5
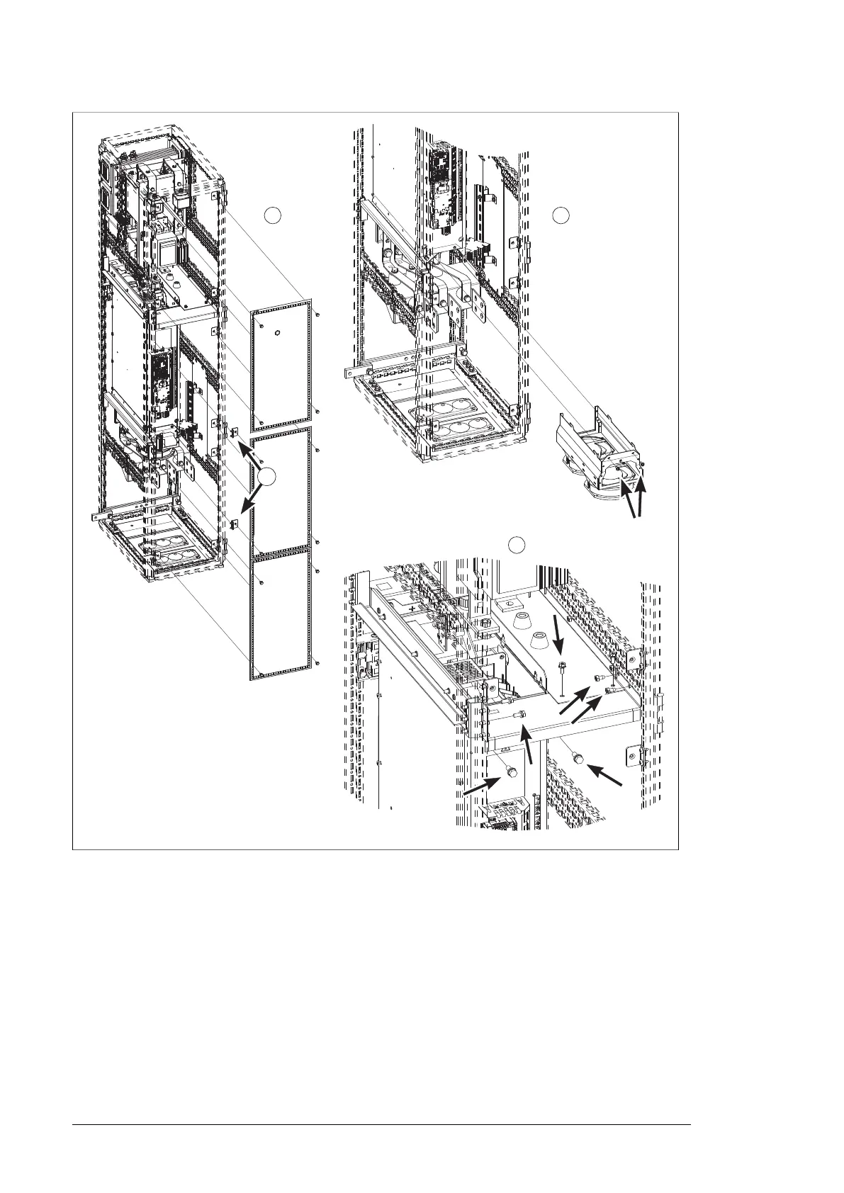
190 Maintenance

Table of Contents

Other manuals for ABB ACS880-104

Related product manuals