EasyManua.ls Logo

ABB ACS880-104

ABB ACS880-104
406 pages
To Next Page IconTo Next Page
To Next Page IconTo Next Page
To Previous Page IconTo Previous Page
To Previous Page IconTo Previous Page
Loading...
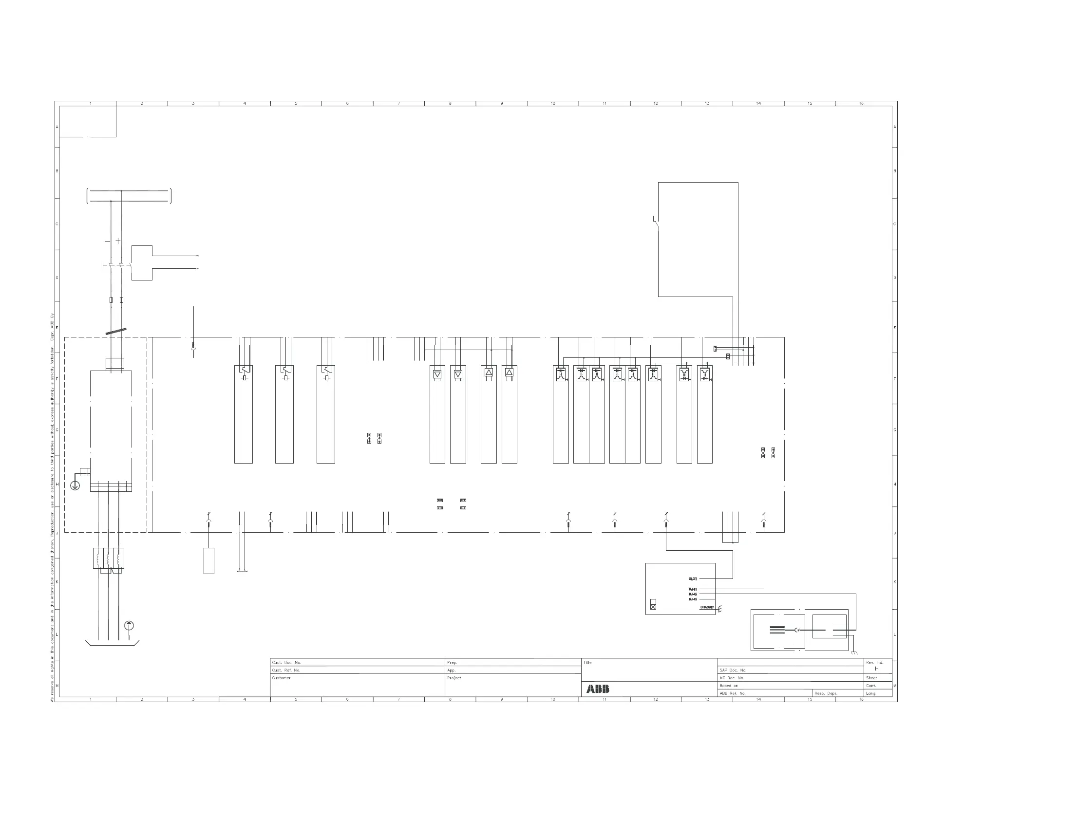
Frame R6i Sheet 001 (Main circuit, control unit)
+11.1
=11
=-T11
PEU2 V2 W2
Udc-
Udc+
1PE
=-1PE
1PE
INVERTER
MODULE
R6i
Z1.1-3
=-F11.1
12
=-F11.2
12
=-Q11
1
34
2
3AXD10000027152 001
020
001.DWG
ACS880-104
Drive Module & ZCU-14 Control Unit
Frame R6i
Circuit diagram
EN
Oleg Vanin29.12.2016
Asikainen Mika29.12.2016
ABB Drives
;24VP:7
020/G8
=-K112
12
1411
020/G6
;24VP:1
020/K4
;24VM:1
1314
;24VM:8
020/K8
;DCP:2
FROM
SUPPLY
;DCM:2
;DCP:3
TO NE XT DRIVE
;DCM:3
-A41
ZCU-14
CONTROL UNIT
MEMORY UNIT
-X205
-XPOW
1 2
+24VDC
11 12 21 22 31 32
RS-485
FOR D2D LINK
-X13
RJ45 FOR PANEL
+VREF
AGND
-XAI
1 2
-VREF
3 4 5 6 7
-XAO
1 2 3 4
DEFAULT OUTPUT DESIGNATION
AO1, AO2; 0(4)...20mA
DEFAULT INPUT DESIGNATION
AI1; 0(2)...10V/-10V...+10V
AI2; 0(4)...20mA
DIIL
-XD24
1 2 3 4
-XRO1
13
-XRO2
23
-XRO3
33
-XDI
1 2 3 4 5 6
DEFAULT INPUT DESIGNATION
DI1...DI6; NOMINAL VOLTAGE 24VDC
-XDIO
1 2
DEFAULT INPUT/OUTPUT DESIGNATION
-SLOT1 -SLOT2
+24V
+24V
+24V
NO
NC
COM
NO
NC
COM
NO
NC
COM
+
-
+
-
RELAY OUTPUT DESIGNATION
RO1...RO3; 250VAC/30VDC, 6A
+
AGND
+
AGND
+24VD
DICOM
+24VD
GND1
21
21
MODULE
CONNECTION
-X201
AI1, AI2 CURRENT/VOLTAGE
SELECTOR JUMPER
JUMPER IN J1A: CURRENT INPUT
JUMPER IN J1B: VOLTAGE INPUT
JUMPER IN J2A: CURRENT INPUT
JUMPER IN J2B: VOLTAGE INPUT
J1B
J1A
AI1
J2B
J2A
AI2
DRIVE-TO-DRIVE LINK
TERMINATION JUMPER
TERMINATED
NOT TERMINATED
(DEFAULT)
5
DIOGND
DI1...DI5
FLOATING POSITION
J6A
-X208
1 2
INT_FAN
3
GND1
INT_FAN_FB
INTERNAL FAN 1
-X210
1 2
INT_FAN
3
GND1
INT_FAN_FB2
INTERNAL FAN 2
-X209
1 2
INAIR_TEMP
GND1
THERMISTOR FOR
INCOMING AIR
10 37 20 20
2 3
-XD2D
1
B
A
BGND
-SLOT3
20
+24V
OUT
SGND
24V DC IN1
IN1
IN2
24V DC IN2
-XSTO
1 2 3 4
SAFETY
OPTION
-X12
20
4
SHIELD
OPTION SLOTS
DICOM CONNECTED
TO DIOGND (DEFAULT)
DICOM FLOATING
J6B
J3
J6A
J6B
-DIO1
11_OUTPUT:RELAY
-DIO2
11_OUTPUT:RUNNING
-DI1
11_START/STOP
-DI2
11_FORWARD/REVERSE
-DI3
11_RESET
-DI4
0=ACTIVE
11_EMERGENCY STOP
-DI5
1=RUN ENABLED
11_RUN ENABLE
-DI6
11_NOT IN USE
-AO2
0(4)...20mA <-->
0(4)...Motor current
11_CURRENT
-AO1
0(4)...20mA <-->
0(4)...Motor speed
11_SPEED
-AI1
0(2)...10V
11_SPEED REFERENCE
-AI2
By default not in use
0(4)...20mA
11_NOT SPECIFIED
-RO2
1= RUNNING
11_RUNNING
-RO3
1=NO FAULT
11_FAULT (-1)
-RO1
1=ESTOP ACTIVE
11_ESTOP FEEDBACK
;A47X1:1
K13
=-A41_MEM
MEMORY
UNIT
MOTOR CONNECTION
=-1PE
3PE
=-R12.1
U1U2
=-R12.2
V1V2
=-R12.3
W1W2
OPTIONAL dU/dt filter
TERMINATION
SWITCH S1
TERMINATED
OPEN
=-A47
-X100
-X1
-X2
-X3
FDPI-02
DIAGNOSTICS AND PANEL INTERFACE
-DOOR
=-A48
-X100
-X101
-X102
-X103
DPMP-01
PANEL KIT
6
=-A49
X3
USB
CONTROL PANEL
ACS-AP-W
;A47X1:1
E3
390 Circuit diagrams

Table of Contents

Other manuals for ABB ACS880-104

Related product manuals