EasyManua.ls Logo

ABB ACS880-104

ABB ACS880-104
406 pages
To Next Page IconTo Next Page
To Next Page IconTo Next Page
To Previous Page IconTo Previous Page
To Previous Page IconTo Previous Page
Loading...
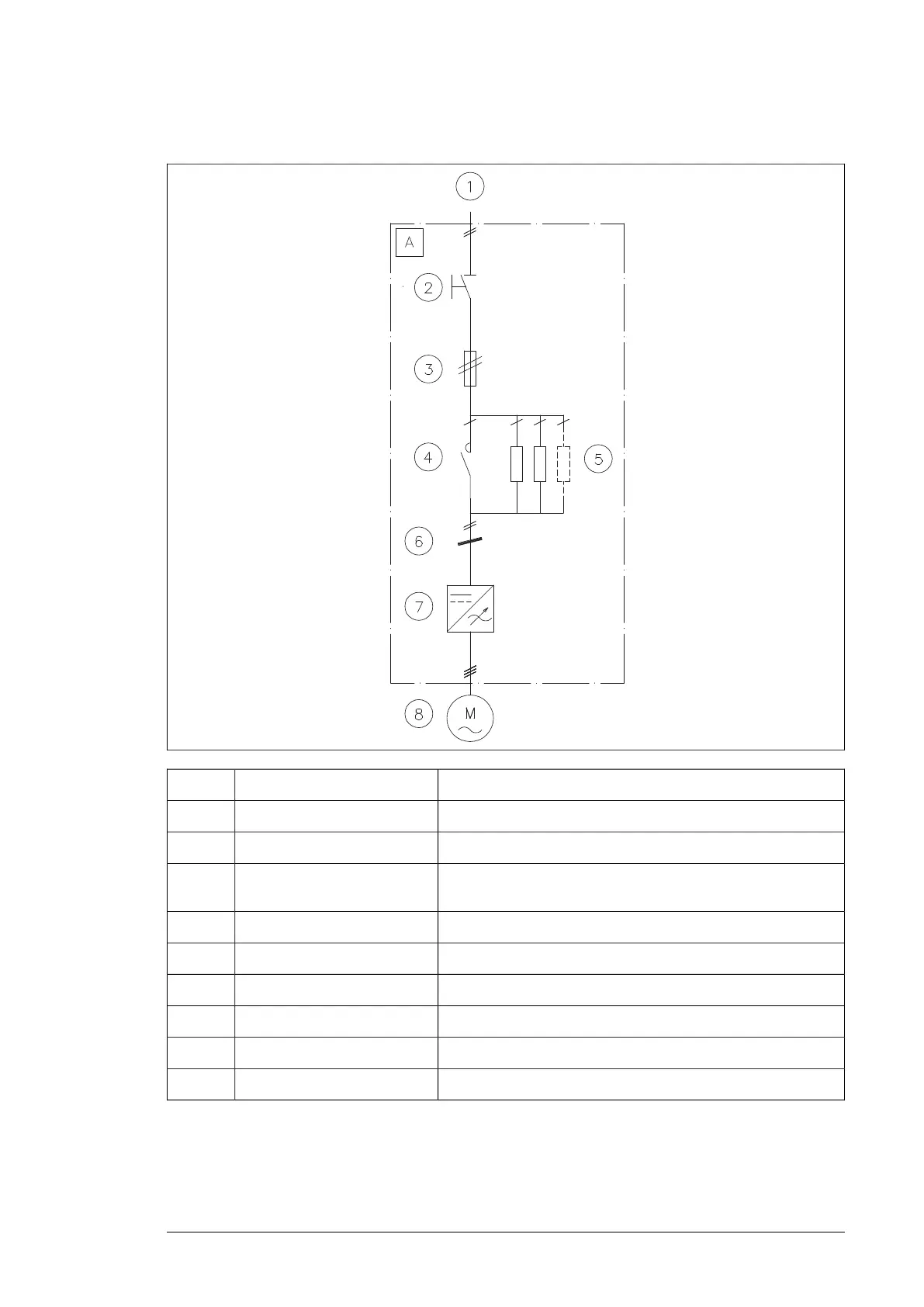
Overview circuit diagram of an inverter cubicle (frame R7i)
Available throughExplanationItem
-Inverter cubicleA
-DC supply1
ABB or third partyDC switch/disconnector (option-
al)
2
ABB or third partyDC fuses3
ABB or third partyCharging contactor (optinal)4
ABB or third partyCharging resistor (optional)5
ABBCommon mode filters6
ABBInverter module7
ABB ( not part of ACS880-104 product offering) or third partyMotor8
Cabinet layout and cooling
See chapter Cabinet construction (page 45).
Hardware description 31

Table of Contents

Other manuals for ABB ACS880-104

Related product manuals