EasyManua.ls Logo

ABB ACS880-104

ABB ACS880-104
406 pages
To Next Page IconTo Next Page
To Next Page IconTo Next Page
To Previous Page IconTo Previous Page
To Previous Page IconTo Previous Page
Loading...
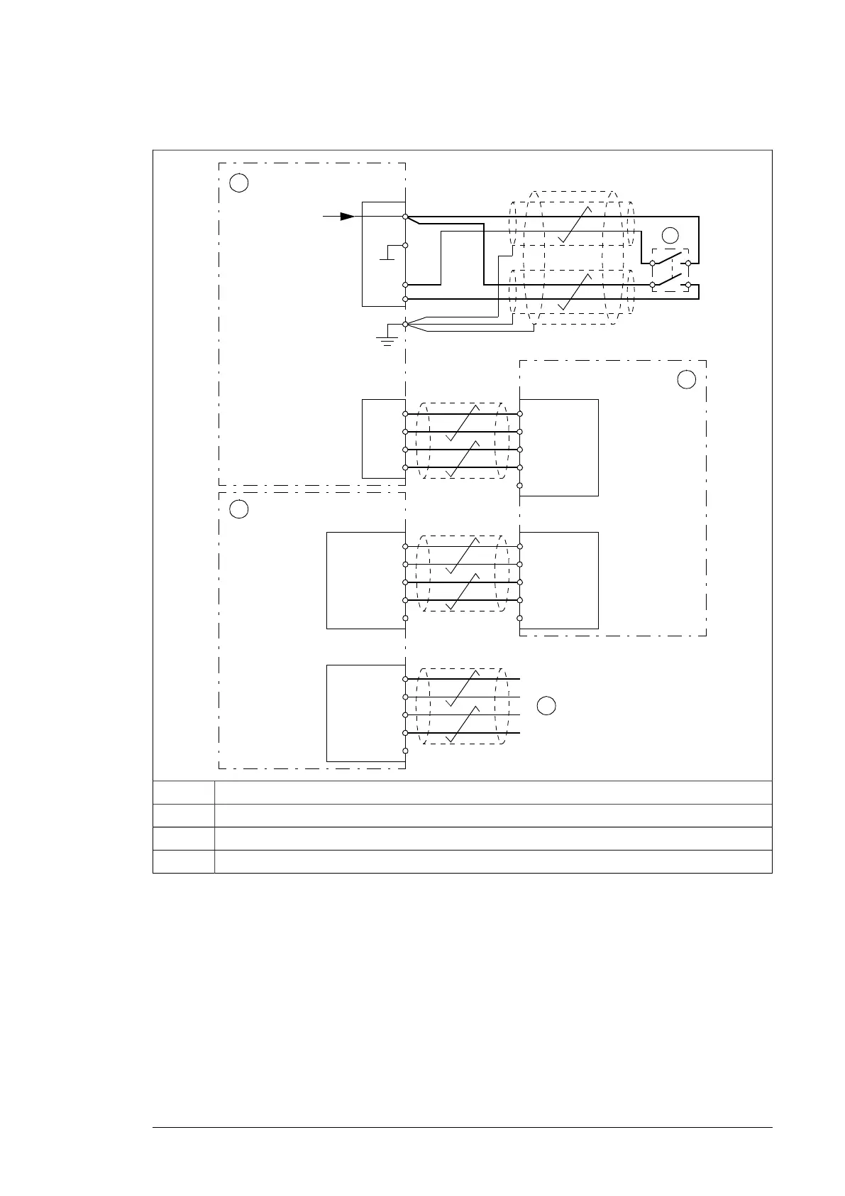
Frame R8i and multiples
+24 V
OUT
SGND
IN1
IN2
XSTO
K
IN1
SGND
XSTO OUT
IN2
SGND
24VDC CH1
GND CH1
STO IN (X52)
24VDC CH2
FE
GND CH2
24VDC CH1
GND CH1
STO OUT (X51)
24VDC CH2
FE
GND CH2
24VDC CH1
GND CH1
STO IN (X52)
24VDC CH2
FE
GND CH2
24VDC CH1
GND CH1
STO OUT (X51)
24VDC CH2
FE
GND CH2
1
2
2
3
Inverter control unit1
Inverter module(s)2
To remaining inverter modules3
Activation switchK
The Safe torque off function 317

Table of Contents

Other manuals for ABB ACS880-104

Related product manuals