EasyManua.ls Logo

ABB ACS880-104

ABB ACS880-104
406 pages
To Next Page IconTo Next Page
To Next Page IconTo Next Page
To Previous Page IconTo Previous Page
To Previous Page IconTo Previous Page
Loading...
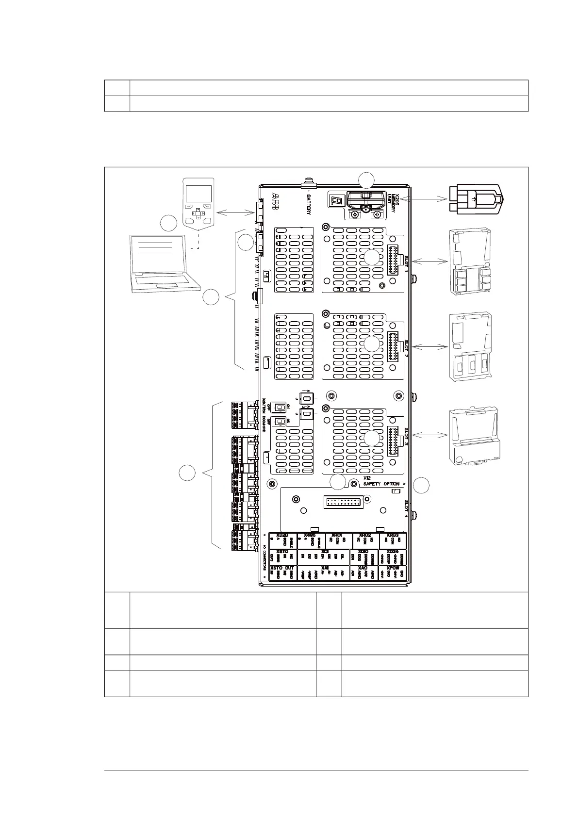
I/O terminal blocks. See chapter Control unit.6
See section The ACx-AP-x control panel.7
Overview of the control connections of the BCU control unit
The diagram shows the control connections and interfaces of the BCU control unit.
1
2
3
4
5
6
7
F
X
X
F
X
X
F
X
X
X
8
CLOSE
9
10
Control panel.7Analog and digital I/O extension modules and
fieldbus communication modules can be inserted
into slots 1, 2 and 3.
1
2
3
Fiber optic links to power modules (inverter,
supply, brake or converter)
8Memory unit4
Ethernet port. Not in use.9Slot 4 for RDCO-0x5
Safety option interface. Only in use for the invert-
er units.
10Terminal blocks.6
Hardware description 39

Table of Contents

Other manuals for ABB ACS880-104

Related product manuals