EasyManua.ls Logo

BK Vibro VIBROCONTROL 6000 - Page 34

BK Vibro VIBROCONTROL 6000
233 pages
Print Icon
To Next Page IconTo Next Page
To Next Page IconTo Next Page
To Previous Page IconTo Previous Page
To Previous Page IconTo Previous Page
Loading...
Mounting and Installation Part A VC 6000
TM
Compact monitor
© VC 6000
TM
Compact monitor Juni 2014 C100575.002 Introduction Vers.10 - 24 -
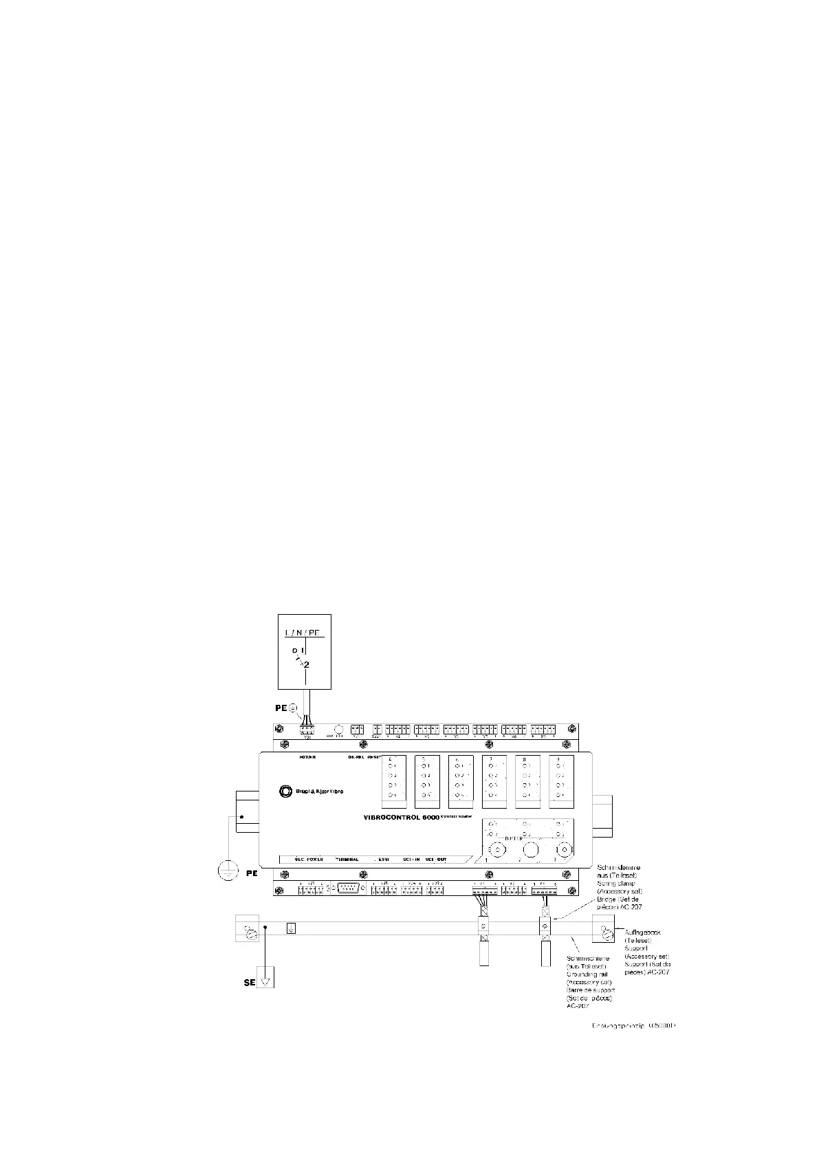
9.3 Grounding concept for VIBROCONTROL 6000 Compact monitor
Optimum screening is obtained, when a separate protective ground (SE) to
the potential-equalisation ground (PE) is available.
The screen of the connecting cable should be made flat when being
connected to the grounding rail.
The housing of the VIBROCONTROL 6000 Compact monitor is
connected through the power supply and mounting rail to PE.
Further advice for correct grounding of the housing and cable screens
can be found in the brochure „General grounding prescriptions“.
Ideally the grounding rail should be isolated from PE and connected to a
separate protective ground. For this purpose the isolated supports
(AB/SS) in the accessory set should be used for securing the collective
rail.
If there is no separate protective ground available for the screen rail, a
connection to the mounting plate can be made with the supports which
make contact (AB/SS-M).
All input signals (X1 / X2 / X3) are to be connected to the
VIBROCONTROL 6000 Compact monitor through screened cables. The
cable screens should be made flat when being connected to the
grounding rail.
Grounding concept for VIBROCONTROL 6000 Compact monitor :

Table of Contents