EasyManua.ls Logo

CASE CONSTRUCTION Alpha Series - Page 260

CASE CONSTRUCTION Alpha Series
300 pages
Print Icon
To Next Page IconTo Next Page
To Next Page IconTo Next Page
To Previous Page IconTo Previous Page
To Previous Page IconTo Previous Page
Loading...
9-SPECIFICATIONS
63109355A2
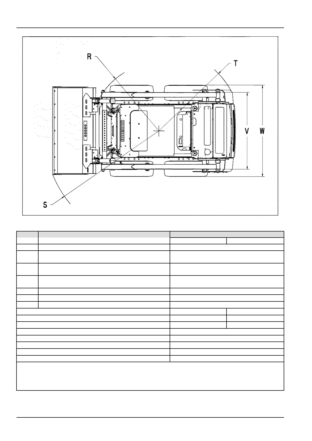
SMALLRADIALFRAMEWHEELUNITS(SR130,SR150)
ITEM
COMPONENTMEASUREMENT
SR130SR150
R
Clearancecircleradiuswithouttool1240.0mm(48.8in)
SClearancecircleradiuswith1524.0mm(60.0in)DF
bucket
1862.0mm(73.3in)
SClearancecircleradiuswith1524.0mm(60.0in)LP
bucket
1994.0mm(78.5in)
SClearancecircleradiuswith1524.0mm(60.0in)LPE
bucket
2112.0mm(83.1in)
T
Clearancecircleradiusrear1433.0mm(56.4in)
V
Overthetirewidth1248.0mm(49.1in)
W
Overallwidth1518.0mm(59.8in)
Operatingweight2300kg(5071lb)2430kg(5357lb)
SAERatedOperatingCapacity(ROC)590kg(1301lb)680kg(1499lb)
Tippingload
1179kg(2599lb)1361kg(3000lb)
Counterweight(optional)76.6kg(168.9lb)
Cabsideglass(optional)21.3kg(47.0lb)
Cabglassdoor(optional)34.0kg(75.0lb)
CabLexandoor(optional)34.0kg(75.0lb)
Suspensionseat(optional)10.0kg(22.0lb)
NOTE:Allmeasurementsarebasedonmachineswith10x16.5tiresanda1524.0mm(60.0in)Dirt&Foundry
(DF)bucket.
NOTE:ClearanceCircleRadius(R,S,T)valueswerecalculatedusinga50/50weightdistribution(centerpointof
counterrotationcenteredbetweentheaxles)andwiththebucketrestingatonground.
9-4

Table of Contents

Related product manuals