EasyManua.ls Logo

EPRAD eCNA-10 - NEC Projector Control Commands List

EPRAD eCNA-10
204 pages
Print Icon
To Next Page IconTo Next Page
To Next Page IconTo Next Page
To Previous Page IconTo Previous Page
To Previous Page IconTo Previous Page
Loading...
© EPRAD Incorporated
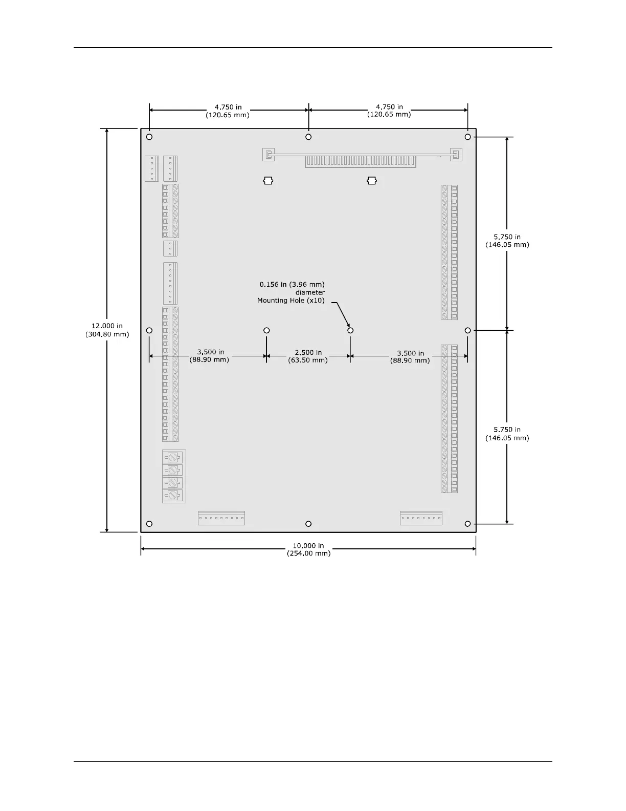
8.6 39431 Board Dimensions
146
eCNA-10 Operation and Installation Manual Version 1.270-00

Table of Contents