EasyManua.ls Logo

FOR-A MFR-3000 - External Dimensions; Mfr-3000

FOR-A MFR-3000
98 pages
Print Icon
To Next Page IconTo Next Page
To Next Page IconTo Next Page
To Previous Page IconTo Previous Page
To Previous Page IconTo Previous Page
Loading...
94
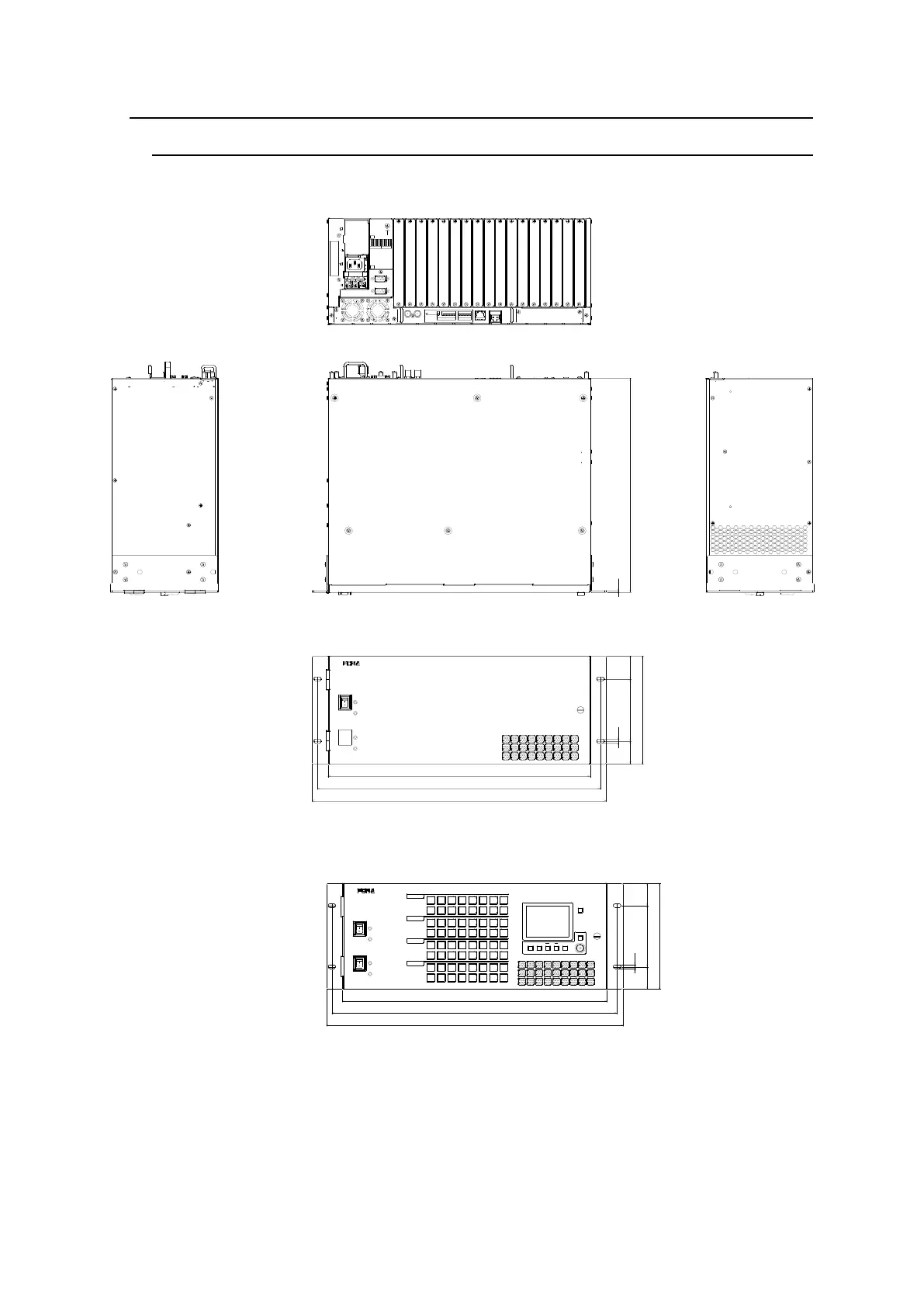
10-2. External Dimensions
10-2-1. MFR-3000
(All dimensions in mm.)
POWER 2
ROUTING SWITCHER
ON
OFF
OFF
ON
ALARM
ALARM
9
1
2
3
4
5
6
7
8
1
2
3
4
5
6
7
8
I
N
P
U
T
MFR-3000
POWER 1
O
U
T
P
U
T
S
E
R
I
A
L
A
L
A
R
M
R
E
F
I
N
S
E
T
S
L
O
T
O
U
T
P
U
T
I
N
P
U
T
9
8
7
6
5
4
3
2
1
8
7
6
5
4
3
2
1
O
F
F
O
N
M
F
R
-
L
A
N
1
P
C
-
L
A
N
R
A
T
I
N
G
L
A
B
E
L
A
C
1
0
0
-
2
4
0
V
5
0
/
6
0
H
z
I
N
A
C
1
0
0
-
2
4
0
V
5
0
/
6
0
H
z
I
N
P
S
2
P
S
1
S
L
O
T
430
464
482
3
7
.
5
6
.
4
3
7
.
5
1
0
2
1
7
7
2
.
3
3
5
0
When an MFR-30FP option installed:
POWER 2
ROUTING SWITCHER
ON
OFF
OFF
ON
ALARM
ALARM
MFR-3000
POWER 1
430
464
482
6
.
4
3
7
.
5
1
0
2
3
7
.
5
1
7
7
DEST SRC
CANCEL
ASSIGN SETTINGGROUP
LOCK
BUTTON

Table of Contents

Related product manuals