EasyManua.ls Logo

Fuji Electric Frenic Mega Series - Page 309

Fuji Electric Frenic Mega Series
774 pages
To Next Page IconTo Next Page
To Next Page IconTo Next Page
To Previous Page IconTo Previous Page
To Previous Page IconTo Previous Page
Loading...
5.4 Details of Function Codes
5-128
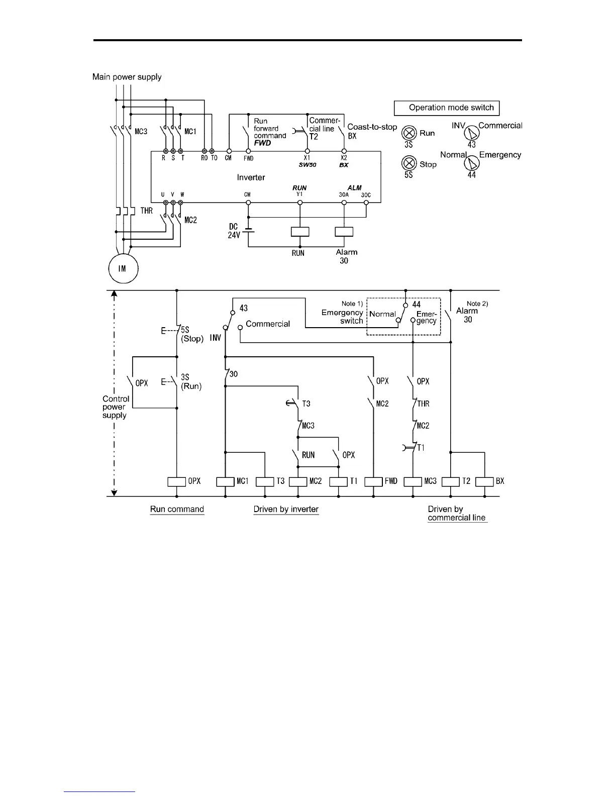
<Example of Sequence Circuit>
Fig. 5.4-48
(Note 1) Emergency switching
Manual switching provided for the event that the motor drive source cannot be switched normally to
the commercial power due to a serious problem of the inverter
(Note 2) When the inverter alarm is output, it automatically switches to the commercial power.

Table of Contents

Related product manuals