EasyManua.ls Logo

Fuji Electric Frenic Mega Series - Page 622

Fuji Electric Frenic Mega Series
774 pages
Print Icon
To Next Page IconTo Next Page
To Next Page IconTo Next Page
To Previous Page IconTo Previous Page
To Previous Page IconTo Previous Page
Loading...
11.4 Option
11-87
Chapter 11 SELECTING PERIPHERAL EQUIPMENT
Class
Terminal
Signal
Name Explanation Remarks
[Ao+]
Voltage output
(+)
Outputs the monitor signal of analog DC
voltage (0 to ±10 VDC)
One of the followings can be issued from this
terminal.
Output frequency (before slip compensation,
after slip compensation)
Output current • Output voltage
• Output torque
Load factor •Input power
PID feedback value
PG feedback value
DC link bus voltage
Universal AO • Motor output
Analog output test • PID command
• PID output
• Resolution: 1/3000
* Capable of driving up to two analog voltmeters
with 10 kΩ input impedance.
[Ao-]
Analog voltage
output -
Reference terminal for analog voltage output
+[Ao+]
Equipotent with
the inverter's
terminal [11]
[CS+]
Analog current
output +
Outputs the monitor signal of analog DC
current (4 to 20 mA DC)
One of the followings can be issued from this
terminal.
Output frequency (before slip compensation,
after slip compensation)
• Output current
• Output voltage
• Output torque
• Load factor
• Input power
PID feedback value
PG feedback value
DC link bus voltage
• Universal AO
• Motor output
Analog output test
• PID command
• PID output
• Resolution: 1/3000
* Input impedance of the external device: Max.
500 Ω
Isolated from
terminals [31],
[Ao-], and [11]
(the inverter’s
terminals)
Analog output
[CS-]
Analog current
output -
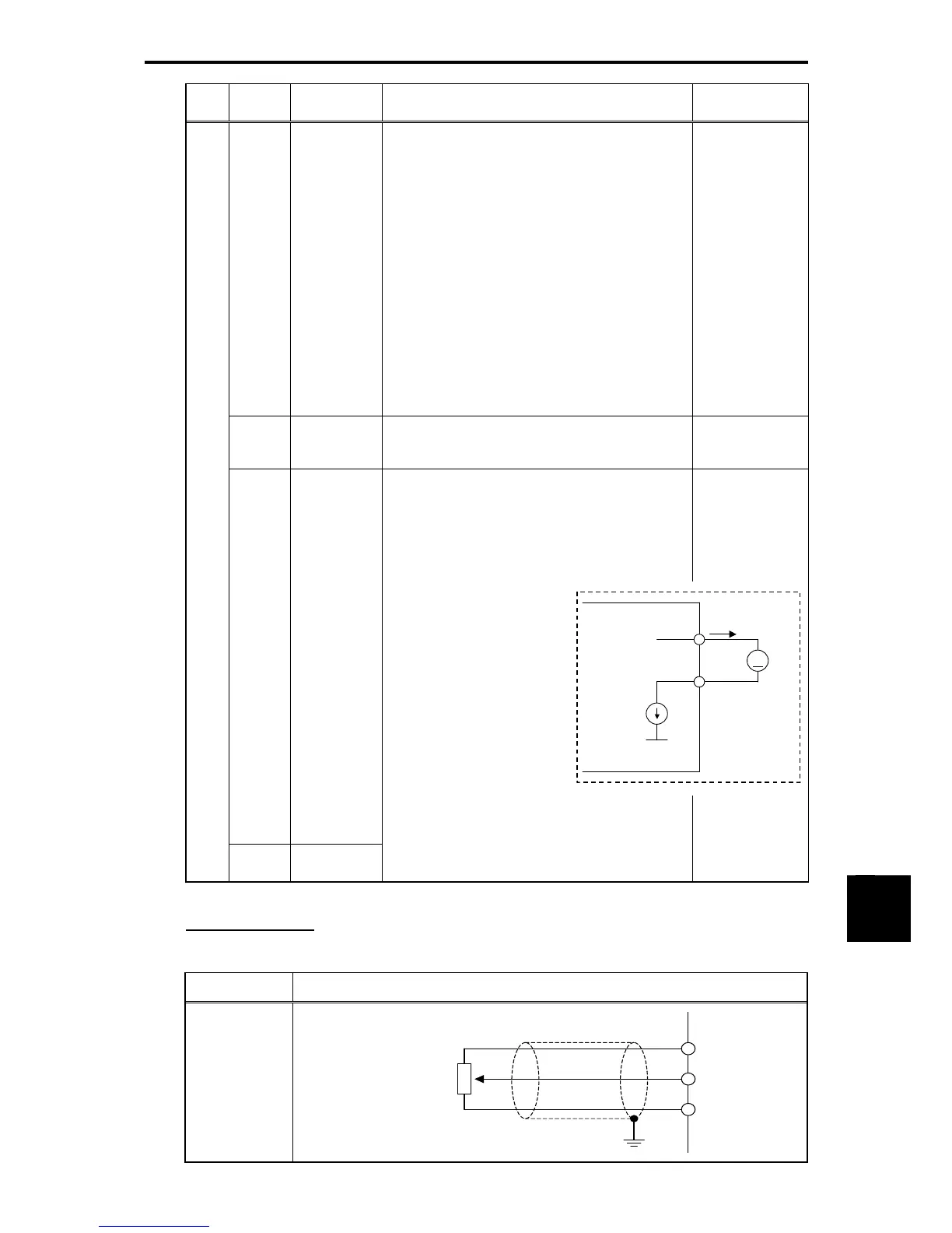
Connection example
Table 11.4-60
Terminal Signal Connection method
[32]
Shielded wire
[P10]
[32]
[31]
Potentiometer
1k to 5k
Ω
24 VDC
[CS+]
[CS-]
[CM]
([CM] on the inverter)
Current
source
Ammeter
<Control circuit>
Current

Table of Contents

Related product manuals