EasyManua.ls Logo

Knick Stratos Multi E401N - Panel-Mount Kit ZU0738

Knick Stratos Multi E401N
222 pages
Print Icon
To Next Page IconTo Next Page
To Next Page IconTo Next Page
To Previous Page IconTo Previous Page
To Previous Page IconTo Previous Page
Loading...
Stratos Multi E401N
25
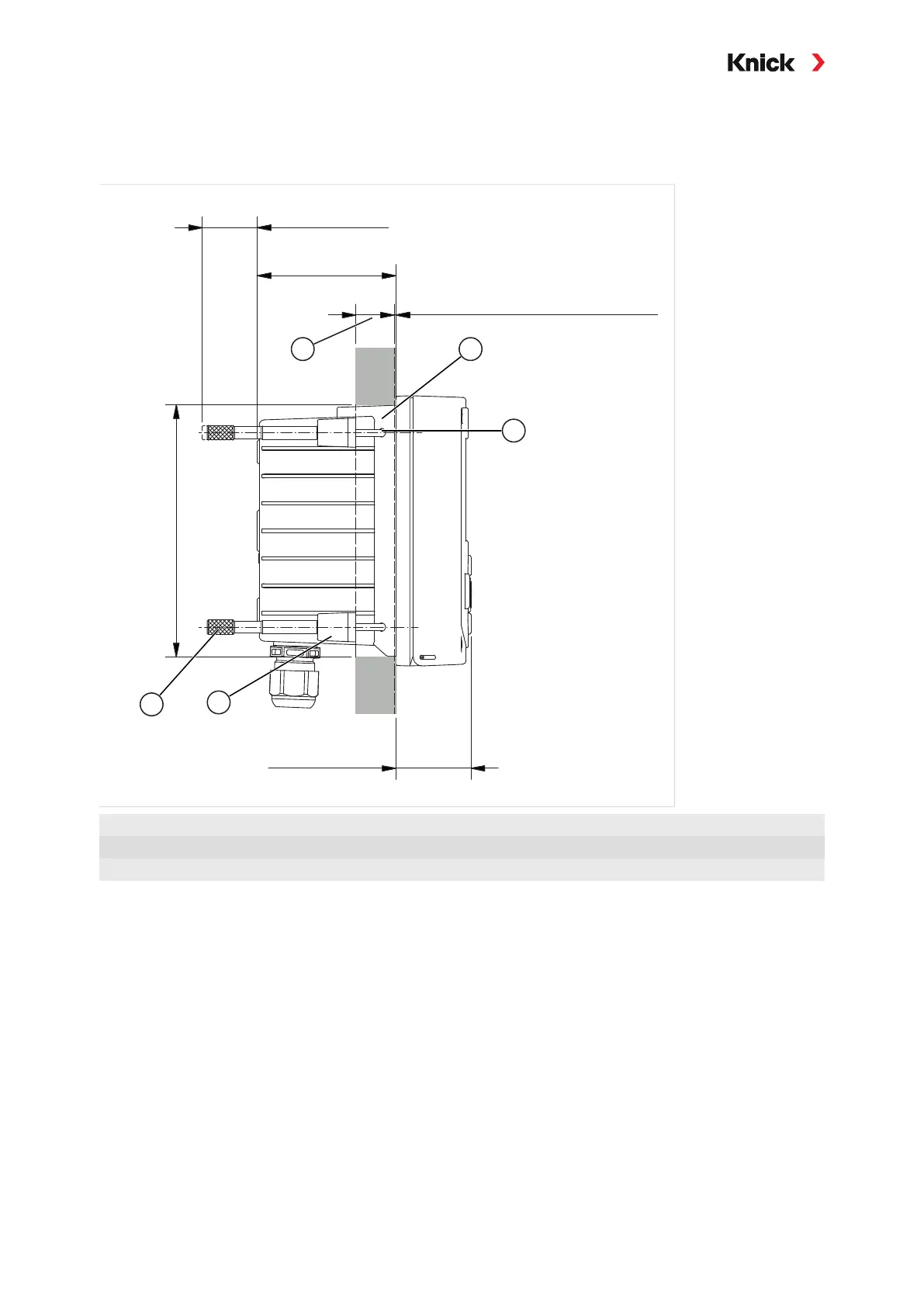
3.1.5 Panel-Mount Kit ZU0738
Note: All dimensions are given in millimeters [inches].
Cutout 138mm x 138mm (DIN43700)
22 [0.866]1 [0.039] ...
1
3
8
[
5
.4
3
3
]
76 [2.992]
30 [1.181]<
41 [1.614]
1 2
3
4
5
1
Position of panel
4
Span piece, 4x
2
Circumferential seal, 1x
5
Threaded sleeve, 4x
3
Screw 60.0 x 4.0 mm, 4x

Table of Contents