EasyManua.ls Logo

Liebert Hipulse E - Page 33

Liebert Hipulse E
151 pages
Print Icon
To Next Page IconTo Next Page
To Next Page IconTo Next Page
To Previous Page IconTo Previous Page
To Previous Page IconTo Previous Page
Loading...
Chapter 3 - Battery Installation Liebert Hipulse E Installation Manual
Single or '1+N' UPS System
Page 3-6 (07/04)
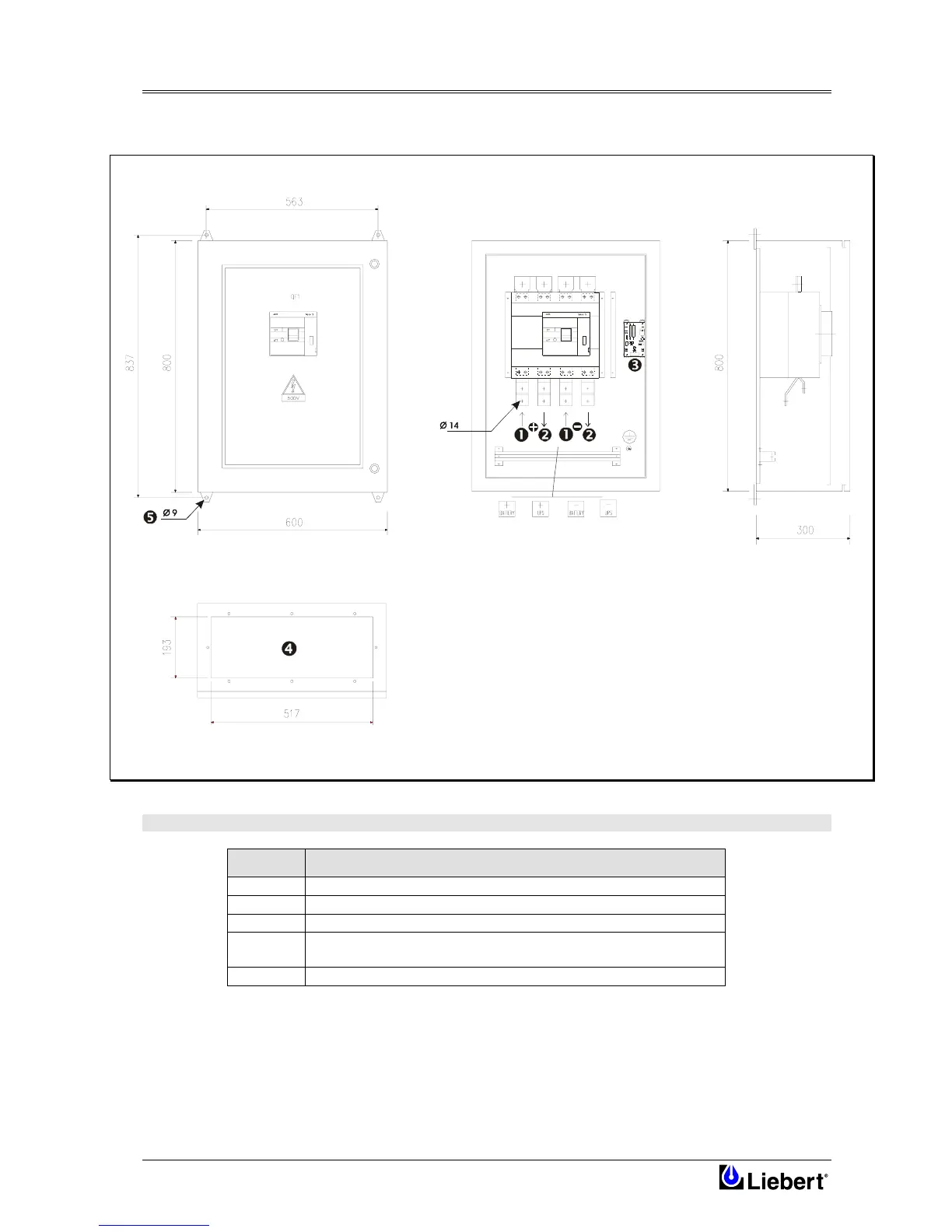
Figure 3-2 Battery circuit breaker box - 800A
BCB 800A
LEGEND
Battery connections (+/-)
Connections
from UPS (+/-)
Battery circuit breaker controller board
Cable entry: bottom. User to size and cut holes for the cables to be
used.
Wall mounting holes

Table of Contents

Related product manuals