EasyManua.ls Logo

McLaughlin VX30 Series - Maintenance - 600 Service Hours or Twice Yearly; Wheel Bearings - Grease; Belts - Inspect

McLaughlin VX30 Series
210 pages
Print Icon
To Next Page IconTo Next Page
To Next Page IconTo Next Page
To Previous Page IconTo Previous Page
To Previous Page IconTo Previous Page
Loading...
60-44 Maintenance - 600 Service Hours or Twice Yearly VX30/VX50 Gen3/ECO50 Vacuum Systems
MAINTENANCE - 600 SERVICE HOURS OR TWICE YEARLY
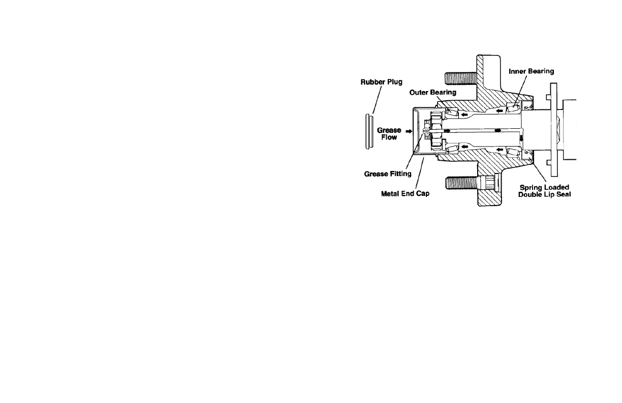
Wheel Bearings - Grease
Step 1: Remove center rubber plug from the end of the grease cap.
Step 2: Place a standard
grease gun onto the grease fitting at the end of
the spindle. Ensure grease gun nozzle fully engages the fitting.
Step 3: Pump greas
e into the fitting. The old displaced grease will begin
to flow back out the cap around the grease gun nozzle.
NOTICE: Rotate
hub or drum while adding grease.
Step 4: When new
clean grease is observed, remove grease gun, wipe off
any excess, and install rubber plug.
Belts - Inspect
Refer to “Belt Maintenance,” page 60-54, for belt maintenance
instructions.
Inspect and verify the condition of belts; replace as necessary.
Look for signs of aging such as frayed edges and cracks.
Tighten belts if necessary.

Table of Contents

Related product manuals